- 86447 Aindling
- Platz von Avord 1
- Kaufpreis299.900,00 €
- Kaufpreis pro m²5.629,81 €
- Wohnfläche53,3 m²
- Anzahl Zimmer 2,0
- Objektnummer FALC-MK-79743
Reserviert! Sofort bezugsfrei – modern, exklusiv & energieeffizient
Objektbeschreibung
Objekttitel
Reserviert! Sofort bezugsfrei – modern, exklusiv & energieeffizient
Lage
Aindling präsentiert sich als historisch gewachsenes Marktzentrum am nordwestlichen Lechrain. Die örtliche Infrastruktur mit Supermärkten, Fachgeschäften, Banken, Apotheke und Restaurants deckt den täglichen Bedarf bequem vor Ort.
Ihr neues Zuhause befindet sich in einem ruhigen und familienfreundlichen Wohngebiet. Hier können Sie und Ihre Familie die Natur in vollen Zügen genießen. In der näheren Umgebung befinden sich auch einige schöne Badeseen, die im Sommer zu einer erfrischenden Abkühlung einladen.
Eine Grund- und Mittelschule, sowie Kindergärten und eine Krippe gehören zur Gemeinde und sind in wenigen Minuten fußläufig zu erreichen. Im regen Vereinsleben finden Jung und Alt vielfältige Interessen und schnellen Kontakt.
Die Marktgemeinde Aindling liegt ca. 15 Minuten mit dem Auto nördlich von Augsburg entfernt – nach München sind es ca. 50 Minuten. Auf die B17 / B2 oder die A8 Richtung München / Stuttgart gelangen Sie in ca. 10 Minuten. Weiterhin bringt Sie der Bus jede halbe Std. nach Augsburg.
Ausstatt_beschr
Highlights und Ausstattungsdetails auf einen Blick:
- Massivbauweise als KfW-Effizienzhaus 55
- Luft-Wasser-Wärmepumpe
- Aufzug
- Bodentiefe Fensterfronten sorgen für lichterfüllte Räume
- 3-fach-verglaste Kunststofffenster in Weiß
- Elektrische Rollläden
- Fußbodenheizung
- Hochwertige Böden
- Terrasse mit Garten oder Balkon
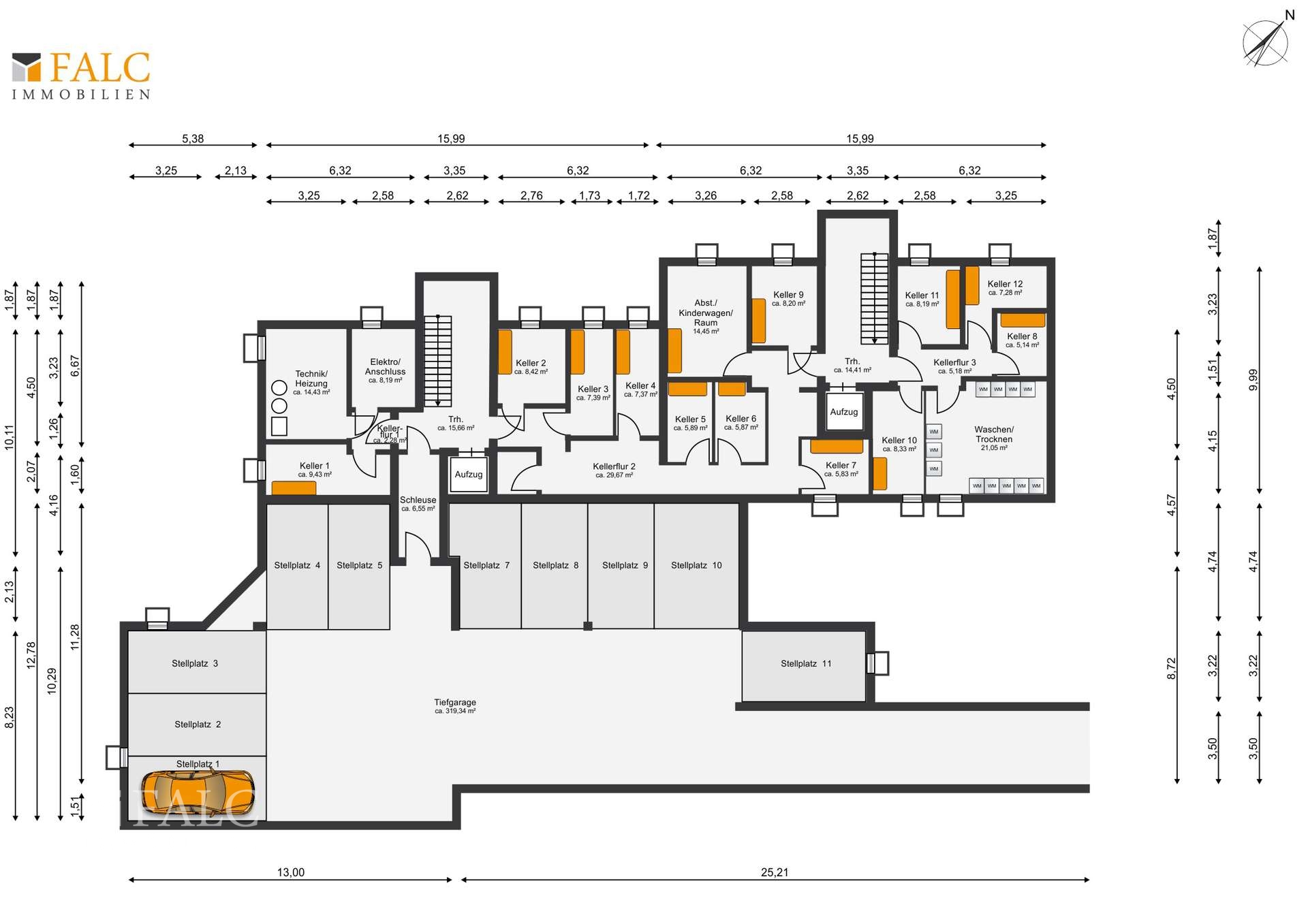
- Kellerabteil
- Wasch- und Trockenraum mit jeweils eigenem Waschmaschinenanschluß
- TG-Stellplatz (Kauf € 25.500,–)
Objektbeschreibung
Diese stilvolle 2-Zimmer-Dachgeschosswohnung vereint Funktionalität und Wohnkomfort in idealer Weise. Sie befindet sich in einem kleinen Mehrfamilienhaus mit nur sechs Parteien und bietet dadurch eine ruhige und exklusive Umgebung.
Das Herzstück der Wohnung bildet der offene Wohn- und Essbereich mit integrierter Küche. Die moderne Einbauküche, die gegen Ablöse übernommen werden kann, überzeugt durch hochwertige Materialien, elegante Arbeitsflächen und moderne Elektrogeräte, die sowohl optisch als auch funktional überzeugen. Der Mix aus Laminat- und Fliesenboden verleiht den Räumen eine zeitlose Eleganz und ist zugleich pflegeleicht.
Große Fenster sowie der Zugang zum Balkon sorgen für viel Tageslicht und eine angenehme Atmosphäre. Der großzügige Balkon mit einer Fläche von etwa 11 m² bietet genügend Raum für eine gemütliche Sitzgruppe und ist der perfekte Ort zum Entspannen. Dreifach verglaste Kunststofffenster mit elektrischen Rollläden gewährleisten eine hervorragende Isolierung und tragen zur Energieeffizienzklasse A+ bei.
Das moderne Badezimmer verfügt über einen Waschmaschinenanschluss und ist mit hochwertigen Fliesen sowie stilvollen Sanitäranlagen ausgestattet. Das geräumige Schlafzimmer bietet ausreichend Platz für eine erholsame Nachtruhe.
Zusätzlichen Stauraum bietet das eigene Kellerabteil. Gemeinschaftlich nutzbare Einrichtungen wie ein Wasch- und Trockenraum sowie ein Abstellbereich für Kinderwagen oder Mobilitätshilfen erhöhen den Wohnkomfort. Die vollautomatische Zentralheizung mit Luft-Wasser-Wärmepumpe sorgt für eine effiziente, kostengünstige und umweltfreundliche Wärmeversorgung.
Für einen besonders komfortablen Einzug bietet der Vormieter nicht nur eine hochwertige Küche, sondern auch diverse Möbelstücke und elektronische Geräte zu einer sehr fairen Ablöse an. Bei einer anschließenden möblierten Vermietung, mit einer Kaltmiete i.H.v. 1.150€ , lässt sich eine Rendite von 4,5 % erzielen, was dieses Objekt auch unter Renditegesichtspunkten besonders attraktiv macht.
Diese Wohnung ist nicht nur ein behaglicher Rückzugsort, sondern auch eine nachhaltige Investition in die Zukunft. Vereinbaren Sie noch heute einen Besichtigungstermin und lassen Sie sich von den Vorzügen dieser besonderen Immobilie begeistern!
Sonstige_angaben
Bei Interesse zögern Sie nicht und vereinbaren Sie einen unverbindlichen Termin.
Hier nochmal der Kaufpreis auf einen Blick für Sie zusammengefasst:
Kaufpreis: € 299.900,--
zzgl. Garage: € 25.500,--
----------------------------------------------------------
Gesamtpreis: € 325.400,--
Die komplette Einrichtung incl. Küche kann für € 14.000,-- abgelöst werden.
Wir bieten nicht nur eine kostenlose Hotline, sondern auch einen Service am Wochenende an. Bei Ihrer Anfrage geben Sie bitte immer Ihre vollständigen Kontaktdaten an.
Besuchen Sie auch unsere Homepage www.falcimmo.de.
Hier finden Sie weitere Immobilienangebote und können einen individuellen Suchauftrag generieren.
Ferner finden Sie umfangreiche Informationen zum Thema Immobilie und Finanzierung.
Die Informationen zu diesem Angebot sind sorgfältig recherchiert, dennoch beruhen Sie auf Angaben von Dritten. Für die Vollständigkeit und Richtigkeit können wir daher keine Gewähr übernehmen. Bitte beachten Sie, dass die Grundrisse nicht immer maßstabsgetreu sind und nur zum besseren Verständnis der Raumaufteilung dienen. Die gezeigte Bilder sind Beispielbilder und können ggf. Sonderausstattungen enthalten. Das Angebot ist freibleibend, Irrtum und Zwischenverkauf sind vorbehalten. Die Informationen sind ausschließlich für den Empfänger bestimmt, eine Weitergabe an Dritte ist nicht gestattet.
Ausstattung
- Ausstattungskategorie
- Gehoben
- Bad
- Dusche
- Heizungsart
- Fussboden
- Befeuerung
- Luftwärmepumpe
- Fahrstuhl
- Personen
- Stellplatzart
- Tiefgarage
- DV Verkabelung
- Unterkellert
- Keller
Energiepass
- Energieausweistyp
- Bedarfsausweis
- Gültig bis
- 19.01.2033
- Energiebedarf
- 14.4
- Energieträger
- Luftwärmepumpe
- Energieeffizienzklasse
- A PLUS
- Ausstelldatum
- 20.01.2023
- Geltende EnEV
- 2014
- Gebäudeart
- Wohngebäude
Kontaktperson
- Firma
- FALC Immobilien München
- Name
- Kenner
- Vorname
- Manfred
- Strasse
- Luise-Kiesselbach-Platz
- Hausnummer
- 31
- PLZ
- 81377
- Ort
- München
- Email Zentrale
- anfragen-muc@falcimmo.de
- Telefon Zentrale
- +49 89 78707710
- Fax
- +49 2242 9010319
- Mobil
- +49 175 4173526
- Webseite / URL
- https://www.falcimmo.de/immobilien-muenchen.html
Immobiliendetails
- Objektnummer
- FALC-MK-79743
- Vermarktung
- Verkauf
- Objektart
- Wohnung, DACHGESCHOSS
Kosten
- Kaufpreis
- 299.900,00 €
- Kaufpreis pro m²
- 5.629,81 €
Flächen
- Wohnfläche
- 53,3 m²
- Nutzfläche
- 12,8 m²
- Anzahl Zimmer
- 2,0
- Anzahl Schlafzimmer
- 1,0
- Anzahl Badezimmer
- 1,0
- Anzahl Stellplätze
- 1,0
- Anzahl Balkone
- 1,0
Zustand
- Baujahr
- 2023
- Zustand
- Neuwertig















