- 51702 Bergneustadt
- Kaufpreis79.000,00 €
- Provision3,57% inkl. MwSt. des notariellen Kaufpreises inkl. MwSt.
- Wohnfläche78,0 m²
- Anzahl Zimmer 3,0
- Objektnummer FALC-AL-72603
Objektbeschreibung
Objekttitel
Raum für Ideen – Kapitalanlage mit Entwicklungschance
Lage
Die Immobilie liegt in einer gut angebundenen und attraktiven Umgebung, die sowohl Annehmlichkeiten als auch Investitionspotenzial bietet.
In unmittelbarer Nähe befinden sich mehrere Bushaltestellen, die eine schnelle Anbindung an den öffentlichen Nahverkehr gewährleisten. Die nächste Haltestelle ist nur wenige Schritte entfernt, was die Mobilität in der Region erleichtert. Für Autofahrer ist die Autobahnauffahrt in etwa 6 km Entfernung schnell erreichbar, was eine zügige Verbindung zu den umliegenden Städten ermöglicht.
Ein weiterer Vorteil der Lage ist die Nähe zu Bildungseinrichtungen. Die Technische Hochschule Köln, Campus Gummersbach, ist in etwa 5,5 km Entfernung zu finden. Dies macht die Immobilie besonders attraktiv für Studierende und akademisches Personal, die eine Wohnmöglichkeit in der Nähe ihrer Hochschule suchen.
Für die medizinische Versorgung ist ebenfalls gesorgt. Das Kreiskrankenhaus Gummersbach liegt etwa 5,5 km entfernt und bietet umfassende Gesundheitsdienstleistungen. Zusätzlich gibt es mehrere Arztpraxen in der Umgebung, die eine schnelle medizinische Betreuung sicherstellen.
Die Nähe zu Supermärkten wie Aldi und REWE, die jeweils in etwa 2 km Entfernung liegen, garantiert eine bequeme Versorgung mit den täglichen Bedürfnissen. Dies ist ein entscheidender Faktor für Mieter, die Wert auf kurze Einkaufswege legen.
Insgesamt bietet die Lage der Immobilie eine ausgewogene Mischung aus guter Verkehrsanbindung, Bildungs- und Gesundheitsinfrastruktur sowie Einkaufsmöglichkeiten, was sie zu einer attraktiven Investitionsmöglichkeit macht.
Ausstatt_beschr
Die Wohnung befindet sich in einem renovierungsbedürftigen Zustand und bietet Ihnen somit die Möglichkeit, Ihre eigenen Wohnideen und Vorstellungen umzusetzen.
Ein Fahrstuhl sorgt für einen bequemen Zugang zu den Etagen und erleichtert den Alltag. Beheizung und Warmwasser erfolgen über Strom.
Als Bodenbeläge wurden Teppich oder Fliesen verlegt, wodurch eine praktische und vielseitige Nutzung gegeben ist. Die Fenster sind doppelt verglast und in pflegeleichten Kunststoffrahmen eingefasst, was eine gute Isolierung gewährleistet.
Das Badezimmer ist mittelhoch gefliest, verfügt über eine Badewanne sowie ein Fenster, das für Helligkeit und eine natürliche Belüftung sorgt.
Zusätzlich stehen im Keller ein gemeinschaftlicher Waschraum sowie ein eigener Kellerraum zur Verfügung, die für praktische Abstell- und Nutzungsmöglichkeiten sorgen.
Objektbeschreibung
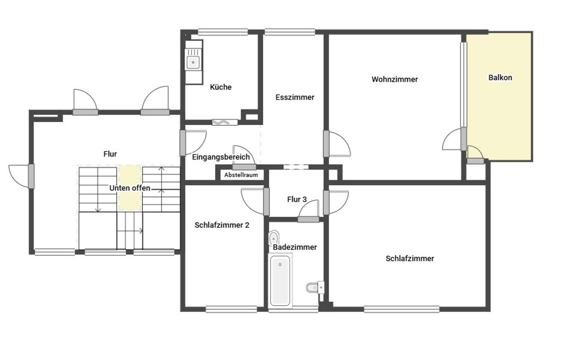
Diese Etagenwohnung in der dritten Etage eines Mehrfamilienhauses aus dem Jahr 1966 bietet eine interessante Gelegenheit für Kapitalanleger. Mit ca. 75 m² Wohnfläche und einer soliden Grundsubstanz verfügt die Wohnung über ein attraktives Potenzial – auch wenn sie etwas renovierungsbedürftig ist. Ein Aufzug im Haus sorgt für zusätzlichen Komfort und erleichtert den Zugang.
Das Raumkonzept ist klassisch und funktional gestaltet. Der helle Wohnbereich öffnet sich zum Balkon, der Platz zum Entspannen im Freien bietet. Neben dem Schlafzimmer steht ein weiteres Zimmer zur Verfügung, das sich ideal als Kinder- oder Arbeitszimmer nutzen lässt. Das Badezimmer ist mit einer Badewanne und einem Fenster ausgestattet und bietet somit Tageslicht und Belüftung.
Eine separate Küche mit angrenzendem Essbereich schafft Raum für gemeinsames Kochen und Essen. Ein kleiner Abstellraum sorgt für zusätzlichen Stauraum und unterstreicht die praktische Aufteilung der Wohnung.
Mit der richtigen Renovierung und Modernisierung lässt sich hier attraktiver Wohnraum schaffen, der sich bestens vermieten lässt. Ein solides Objekt mit viel Entwicklungspotenzial in guter Lage – ideal für Investoren, die Wert auf nachhaltige Kapitalanlagen legen. Selbstnutzung selbstverständlich nicht ausgeschlossen!
Sonstige_angaben
Falls Sie Wert auf eine ruhige Lage, eine durchdachte Raumaufteilung und ein gehobenes Wohnumfeld legen, könnte dieses Objekt genau das Richtige für Sie sein.
Wir bieten Ihnen eine kostenlose 24/7-Hotline unter der Rufnummer 0800-6460646, über die Sie uns jederzeit erreichen können. Wenn Sie Interesse an der Immobilie haben, fordern Sie gerne das ausführliche Exposé an, das Ihnen in der Regel kurzfristig und automatisch zugesandt wird. Sollten Sie eine Besichtigung wünschen, antworten Sie am besten direkt per E-Mail auf das Exposé. Wir setzen uns umgehend mit Ihnen in Verbindung und unterbreiten Ihnen passende Terminvorschläge. Bitte geben Sie dabei stets Ihre vollständigen Kontaktdaten an.
Die Objektbeschreibung basiert ganz oder teilweise auf den Angaben des Eigentümers. Für die Richtigkeit und Vollständigkeit dieser Informationen übernehmen wir keine Gewähr. Möchten auch Sie Ihre Immobilie professionell vermarkten? Dann kontaktieren Sie uns gerne! Wir stehen Ihnen täglich von Montag bis Sonntag zwischen 6:00 und 22:00 Uhr persönlich zur Verfügung. Über 200.000 aktive Interessenten warten bereits auf Ihr Angebot.
Bitte beachten Sie, dass das Exposé möglicherweise unter Zuhilfenahme von Künstlicher Intelligenz (KI) erstellt oder überarbeitet wurde. Dabei wurden jedoch keine wesentlichen Merkmale verändert.
Ausstattung
- WG-Geeignet
- Bad
- Wanne, Fenster
- Küche
- Einbauküche
- Fahrstuhl
- Personen
- Stellplatzart
- Außenstellplatz
- Gartennutzung
- Unterkellert
- Keller
- Abstellraum
Energiepass
- Energieausweistyp
- Bedarfsausweis
- Energieeffizienzklasse
- D
- Gebäudeart
- Wohngebäude
Kontaktperson
- Firma
- FALC Immobilien Hennef
- Name
- Müller
- Vorname
- Robin
- Strasse
- Humperdinckstraße
- Hausnummer
- 3
- PLZ
- 53773
- Ort
- Hennef (Sieg)
- Email Zentrale
- robin.mueller@falcimmo.de
- Telefon Zentrale
- +49 2242 9010343
- Fax
- +49 2242 9010319
- Mobil
- +49 170 3326588
- Webseite / URL
- www.falc-hennef.de
Immobiliendetails
- Objektnummer
- FALC-AL-72603
- Vermarktung
- Verkauf
- Objektart
- Wohnung, ETAGE
Kosten
- Kaufpreis
- 79.000,00 €
- Provision
- 3,57% inkl. MwSt. des notariellen Kaufpreises inkl. MwSt.
Flächen
- Wohnfläche
- 78,0 m²
- Anzahl Zimmer
- 3,0
- Anzahl Schlafzimmer
- 2,0
- Anzahl Badezimmer
- 1,0
- Anzahl Stellplätze
- 1,0
- Anzahl Balkone
- 1,0
Zustand
- Baujahr
- 1966
- Frei ab
- sofort
Dokumente
Dokumente

















