- 07381 Pößneck
- Kaufpreis167.300,00 €
- Jahresnettomiete12.936,00 €
- Provision3,57 % inkl. MwSt. vom notariell vereinbarten Kaufpreis inkl. MwSt.
- Wohnfläche154,0 m²
- Grundstück 120,0 m²
- Anzahl Zimmer 4,0
- Objektnummer FALC-TB-81879
Kapitalanlage mit attraktivem Cashflow – Reihenendhaus in Pößneck mit 1.078 € Monatsmiete
Objektbeschreibung
Objekttitel
Kapitalanlage mit attraktivem Cashflow – Reihenendhaus in Pößneck mit 1.078 € Monatsmiete
Lage
Lage – stark für Vermietbarkeit
Die zentrale, dennoch angenehm wohnliche Lage überzeugt durch kurze Wege: Marktplatz fußläufig (ca. 5–7 Minuten), Bushaltestelle ca. 40 m entfernt. Pößneck bietet eine sehr gute Infrastruktur mit Kitas, Schulen, Einkaufsmöglichkeiten, medizinischer Versorgung (u. a. Krankenhaus) sowie vielfältigen Freizeit- und Sportangeboten. Die Anbindung an den ÖPNV und die BAB 9 (ca. 15 Minuten) sorgt zusätzlich für Nachfrage – auch bei Pendlern.
Fazit
Eine renditestarke Kapitalanlage mit laufendem, planbarem Mietertrag, guter Vermietbarkeit durch Größe, Aufteilung, Garage und Terrasse – in einer Lage, die Mieter durch Infrastruktur und kurze Wege schätzen.
Ausstatt_beschr
* Massivhaus mit Satteldach (ohne Keller)
* Neue Holzfenster mit Thermoverglasung
* Gasheizung mit Heizkörpern
* Über 150 m² Wohn- und Nutzfläche auf 4 Etagen
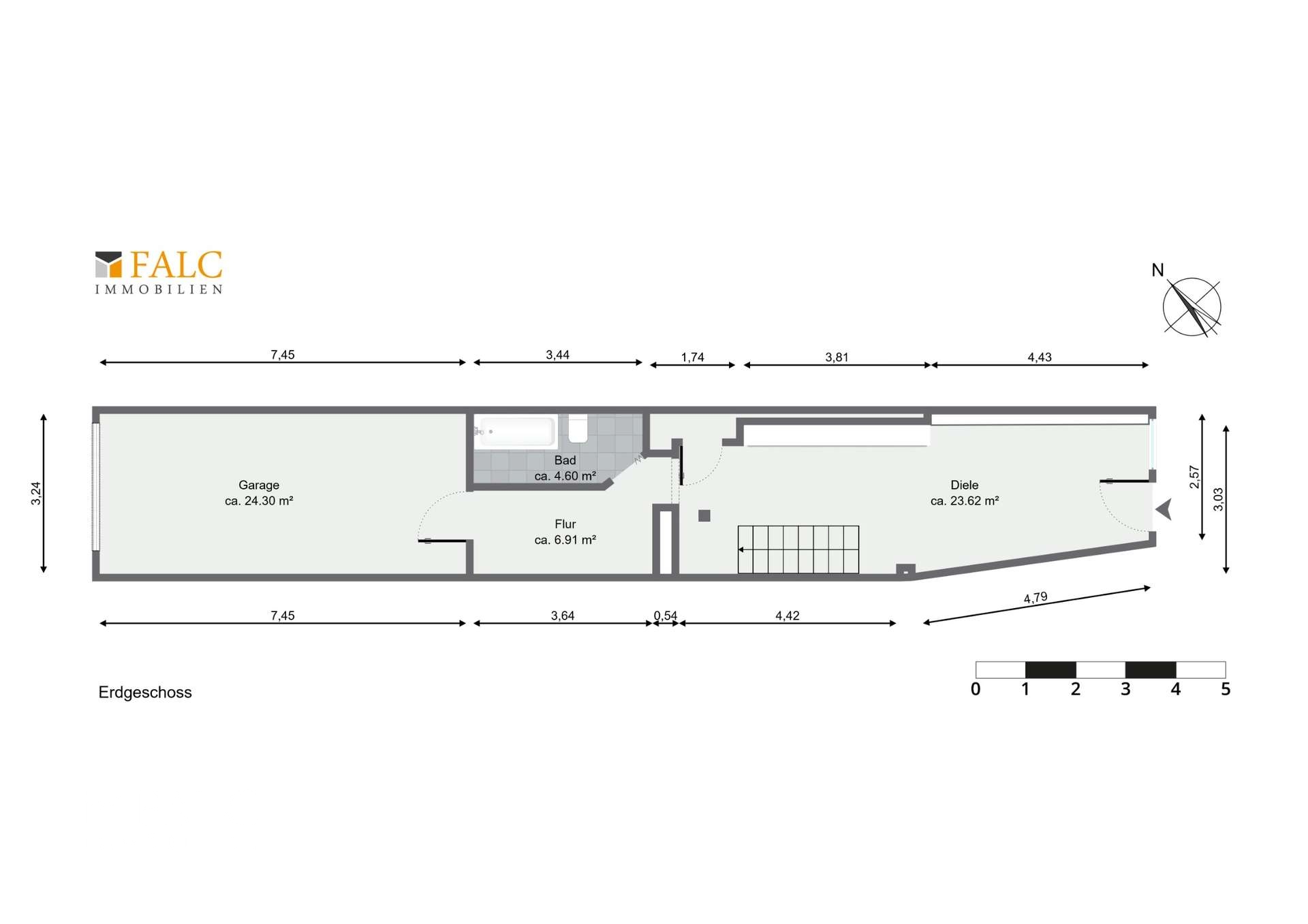
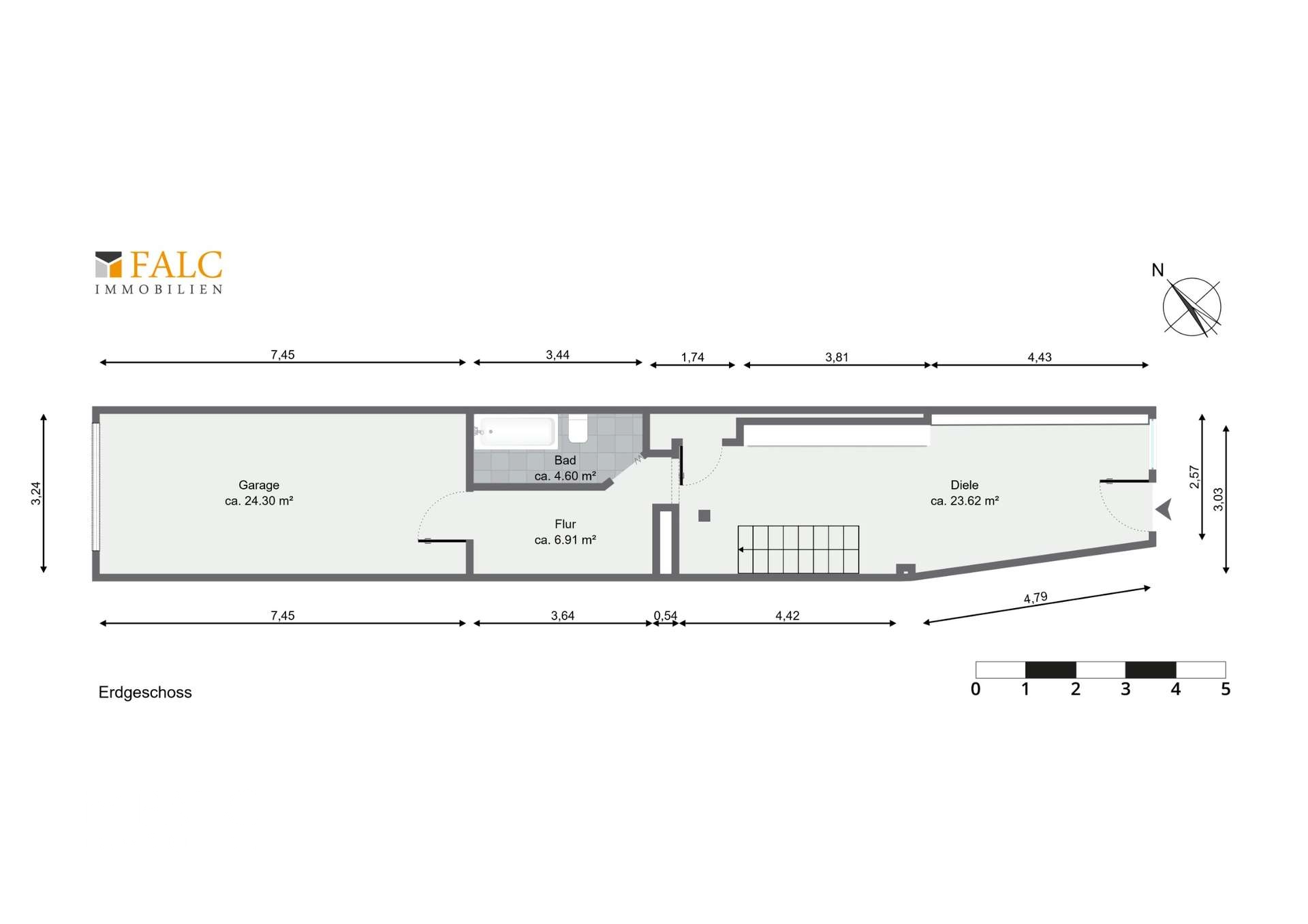
* Großzügige Diele im Erdgeschoss
* Badezimmer mit Badewanne (gefliest)
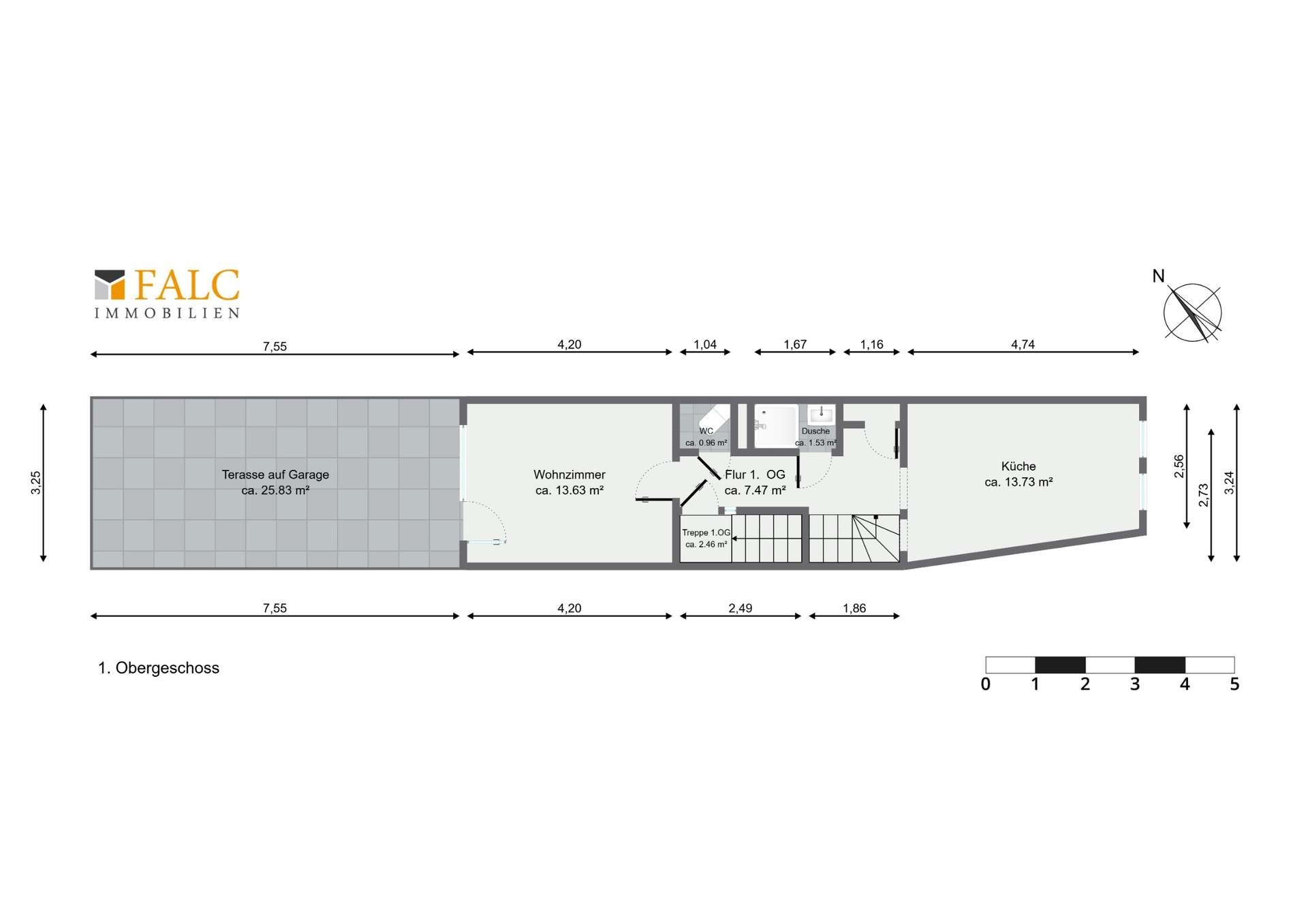
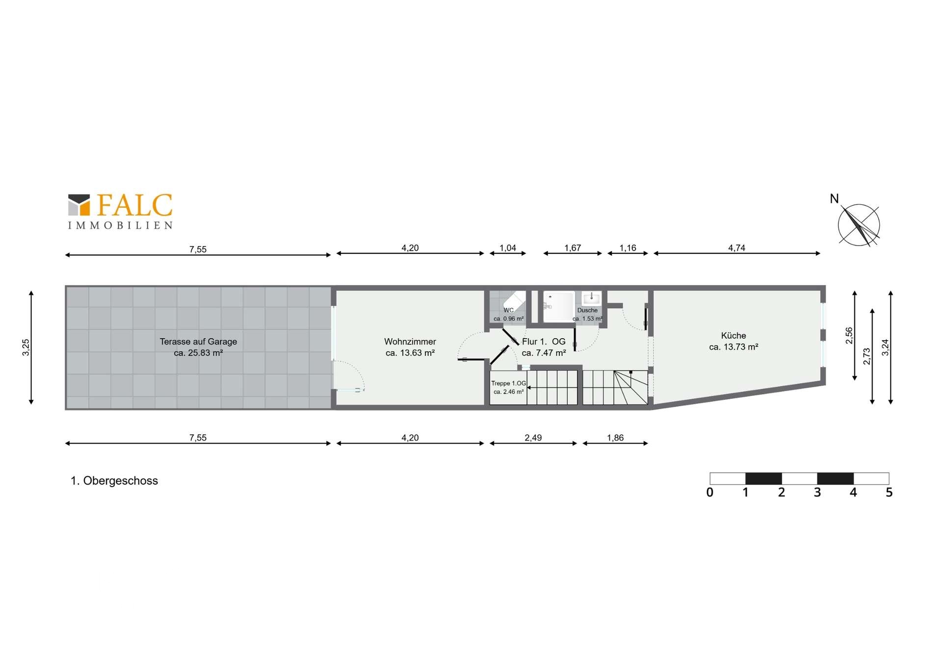
* Zweites separates WC im 1. Obergeschoss
* Zusätzliche Dusche im 1. Obergeschoss (gefliest)
* Küche mit Fliesenspiegel
* Wohnzimmer mit Zugang zur Terrasse
* Terrasse auf dem Anbau vorbereitet
* Ausgebautes Dachgeschoss mit ca. 37 m² offener Fläche (flexibel nutzbar)
* Moderne Infrarot-Fußbodenheizung im Dachgeschoss
* Flur im 2. Obergeschoss mit Einbauschränken und viel Stauraum
* Schlafzimmer und Kinderzimmer im 2. Obergeschoss
* Lichtdurchflutete Räume
* Laminatböden in den Wohnräumen
* Direkt ans Haus angebundene Garage (vom Haus aus zugänglich)
* Garage aktuell als Werkstatt/Lager genutzt, wird nach Verkauf freigeräumt
* Zusätzlicher Stellplatz vor der Garage
* Renovierung bereits erfolgt – Haus nahezu einzugsfertig
* Innengestaltung in Teilen noch nach Ihren Wünschen möglich
Objektbeschreibung
Kapitalanlage mit attraktivem Cashflow – Reihenendhaus in Pößneck mit 1.078 € Monatsmiete (ca. 7,7 % Bruttorendite)
Diese Immobilie ist ideal für Kapitalanleger, die auf solide Mieteinnahmen und eine überzeugende Rendite setzen: Das charmante Reihenendhaus in begehrter Lage von Pößneck bietet rund 154 m² Wohnfläche auf mehreren Ebenen sowie Garage und Terrasse – und ermöglicht monatliche Mieteinnahmen von 1.078 €.
Rendite auf einen Blick
• Kaufpreis: 167.000 €
• Mieteinnahmen: 1.078 € / Monat = 12.936 € / Jahr
• Bruttorendite: ca. 7,7 % p. a. (12.936 € ÷ 167.000 €)
Die durchdachte Etagenaufteilung macht das Haus besonders gut vermietbar: Sie schafft klare Wohnbereiche und bietet Mietern Flexibilität – z. B. für Familien, Paare mit Homeoffice oder Mehrgenerationen-Nutzung.
• Erdgeschoss: Großzügige Diele, Badezimmer mit Badewanne und ein praktischer Pluspunkt für den Alltag: direkter Zugang zur angeschlossenen Garage über den Flur.
• 1. Obergeschoss: Mittelpunkt des Wohnens mit Küche und hellem Wohnzimmer, zusätzlich separates WC sowie weitere Duschmöglichkeit. Vom Wohnbereich geht es direkt auf die Terrasse – ein starkes Argument in der Vermietung.
• 2. Obergeschoss: Schlafzimmer, Kinder-/Gäste- oder Arbeitszimmer sowie Einbauschränke im Flur für zusätzlichen Stauraum.
• Ausgebautes Dachgeschoss: Offene Fläche mit ca. 37 m² – ideal als Hobby-, Arbeits- oder Rückzugsbereich. Zusätzlichen Komfort bietet eine moderne Infrarot-Fußbodenheizung.
Das Haus wurde bereits renoviert. Restarbeiten wurden bewusst offengelassen, sodass Sie als Eigentümer Ausführung und Finish gezielt steuern können – eine gute Möglichkeit, Werterhalt und Vermietbarkeit nach Ihren Standards zu optimieren.
Außenbereich / Mehrwert
Die Terrasse auf dem Anbau ist vorbereitet und bietet Mietern echten Zusatznutzen. Die direkt drunterliegende Garage verbindet Alltagstauglichkeit mit einem stimmigen Gesamtkonzept aus Innen- und Außenbereich.
Sonstige_angaben
Die Angaben zur Immobilie basieren teilweise auf Informationen des Eigentümers. Für deren Richtigkeit und Vollständigkeit übernehmen wir keine Gewähr. Dies gilt insbesondere für Baujahr, Maße und Flächenangaben.
Die in diesem Exposé enthaltenen Fotos und Videos sind teilweise unter Einsatz digitaler Bildbearbeitung und künstlicher Intelligenz erstellt oder optimiert worden. Sie dienen ausschließlich der Veranschaulichung. Verbindlich sind nur die tatsächlichen Gegebenheiten bei einer Besichtigung vor Ort! Eine persönliche Besichtigung vermittelt Ihnen den besten Eindruck.
Bitte geben Sie bei Ihrer Anfrage stets Ihre vollständige Adresse und Telefonnummer an!
Wenn Sie Interesse an dieser oder einer anderen Immobilie aus unserem Portfolio haben, nähere Informationen wünschen oder Fragen zur Finanzierung bestehen, unterstützen wir Sie gern umfassend.
FALC Immobilien – Ihr innovativer Immobilienmakler.
Wir sind auf allen relevanten Portalen präsent – gemäß unserem Motto: Einfach mehr!
Ihr Ansprechpartner:
Thomas Braun
FALC Immobilien Weimar · Über der Nonnenweise 1 · 99428 Weimar
Büro: +49 3643 498 87 12 · Mobil: +49 177 573 26 36
FALC Zentrale (Mo–So 6:00–22:00 Uhr): 0800 / 646 0 646 (kostenfrei)
E-Mail: thomas.braun@falcimmo.de
weitere Immobilienangebote finden Sie hier: https://www.falcimmo.de/immobilienangebote.html
Ausstattung
- Ausstattungskategorie
- Standard
- WG-Geeignet
- Bad
- Dusche, Wanne
- Bodenart
- Laminat, Fliesen
- Befeuerung
- Gas
- Stellplatzart
- Carport, Außenstellplatz
- Gartennutzung
- Abstellraum
- Gäste-WC
Energiepass
- Energieausweistyp
- Bedarfsausweis
- Gültig bis
- 20.11.2035
- Energiebedarf
- 183.09
- Energieträger
- Gas
- Energieeffizienzklasse
- F
- Ausstelldatum
- 21.11.2025
- Geltende EnEV
- 2014
- Gebäudeart
- Wohngebäude
Kontaktperson
- Firma
- FALC Immobilien Weimar
- Name
- Braun
- Vorname
- Thomas
- Strasse
- Über der Nonnenwiese
- Hausnummer
- 1
- PLZ
- 99428
- Ort
- Weimar
- Email Zentrale
- thomas.braun@falcimmo.de
- Telefon Zentrale
- +49 3643 49 88 712
- Fax
- +49 2242 9010319
- Mobil
- +49 177 5732636
- Webseite / URL
- www.falcimmo.de
Immobiliendetails
- Objektnummer
- FALC-TB-81879
- Vermarktung
- Verkauf
- Objektart
- Zinshaus, Renditeobjekt
Kosten
- Kaufpreis
- 167.300,00 €
- Jahresnettomiete
- 12.936,00 €
- Provision
- 3,57 % inkl. MwSt. vom notariell vereinbarten Kaufpreis inkl. MwSt.
Flächen
- Wohnfläche
- 154,0 m²
- Nutzfläche
- 2,0 m²
- Grundstücksfläche
- 120,0 m²
- Anzahl Zimmer
- 4,0
- Anzahl Schlafzimmer
- 3,0
- Anzahl Badezimmer
- 2,0
- Anzahl Stellplätze
- 1,0
- Anzahl Balkone
- 1,0
- Anzahl Terrassen
- 1,0
Zustand
- Baujahr
- 1800
- Zustand
- Vollsaniert
- Letzte Modernisierung
- 2025

















