„Mitten in Krefeld, mitten im Leben – großzügige Wohnung mit Charakter, Charme & Erkerbonus!“
Objektbeschreibung
Objekttitel
„Mitten in Krefeld, mitten im Leben – großzügige Wohnung mit Charakter, Charme & Erkerbonus!“
Lage
Die Wohnung überzeugt durch ihre zentrale Wohnlage im Stadtteil Krefeld-Mitte mit sehr guter Anbindung an den öffentlichen Nahverkehr sowie die städtischen Hauptverkehrsstraßen. Nur wenige Gehminuten zum Haus der Bildung Mitte (Kita, Grundschule, Ganztagsbetreuung). Weitere Grund-, Sekundar- und Förderschulen schnell erreichbar. Sehr gute ÖPNV-Anbindung durch SWK Mobil mit Bus- und Straßenbahnlinien. Für den Autoverkehr gute Erreichbarkeit über Hauptstraßen, Parkmöglichkeiten in Wohnstraßen und Tiefgaragen Ärzte, Fachärzte, Zahnärzte, Apotheken und Gesundheitszentren fußläufig erreichbar Nahversorgung durch Supermärkte, Bäckereien und Einzelhandel in unmittelbarer Umgebung. Vielfältige Einkaufsmöglichkeiten für den täglichen Bedarf in kurzer Distanz.
Ausstatt_beschr
Hinweis: Einige Abbildungen in diesem Exposé wurden mit Hilfe von Künstlicher Intelligenz erstellt oder digital nachbearbeitet. Sie dienen der Illustration und können vom tatsächlichen Zustand der Immobilie abweichen.
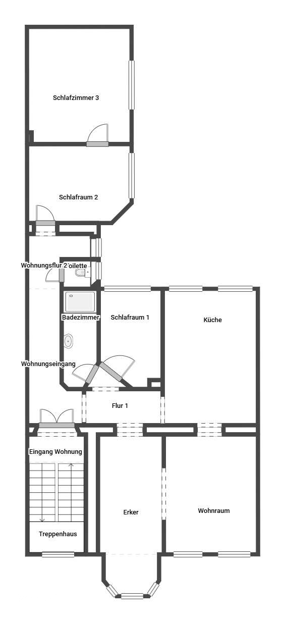
+ Erste Etage
+ Drei Schlafzimmer, eines davon als Durchgangszimmer
+ Großzügige, einladende Küche
+ Heller Wohnraum mit charmantem Erkerzimmer
+ Zwei praktische Wohnungsflure
+ Badezimmer mit Potenzial für eine moderne Neugestaltung
+ Separates WC
+ Eigener Kellerraum vorhanden
3D-Online-Besichtigung: Erleben Sie das Haus virtuell (3D-Online-Besichtigung) unter folgendem Link:
https://app.immoviewer.com/portal/tour/3130627?accessKey=68e2
Der Energieausweis wird Ihnen bei der Besichtigung unaufgefordert vorgelegt.
Die Objektbeschreibung basiert auf Angaben des Eigentümers.
Für die Richtigkeit oder Vollständigkeit übernehmen wir keine Gewähr.
Objektbeschreibung
Die angebotene Wohnung befindet sich in zentraler Lage von Krefeld-Mitte im 1. Obergeschoss eines Mehrfamilienhauses. Sie bietet großzügige Raumverhältnisse und vielseitige Gestaltungsmöglichkeiten. Die Wohnung verfügt über drei Schlafzimmer, wovon eines als Durchgangszimmer ausgeführt ist. Herzstück ist die geräumige Küche, die ausreichend Platz für einen Essbereich bietet. Das helle Wohnzimmer wird durch ein charmantes Erkerzimmer ergänzt, das sich ideal als Arbeits- oder Leseecke eignet. Zwei Flure strukturieren die Wohnfläche und sorgen für eine gute Raumaufteilung. Das Badezimmer bietet Potenzial für eine moderne Neugestaltung, WC und Bad sind separat angeordnet. Ein Kellerraum gehört ebenfalls zur Einheit.
Sonstige_angaben
Hat Sie dieses Exposé überzeugt?
Dann freuen wir uns, Ihnen die Immobilie persönlich vorstellen zu dürfen.
Bitte übermitteln Sie uns dafür Ihre vollständigen Kontaktdaten – so können wir Ihren Termin schnell und zuverlässig koordinieren.
Die Angaben im Exposé basieren ganz oder teilweise auf Informationen des Eigentümers.
Eine Gewähr für deren Vollständigkeit oder Richtigkeit übernehmen wir nicht.
Sie denken darüber nach, Ihre Immobilie zu verkaufen oder zu vermieten?
Als überregionales Immobiliennetzwerk bieten wir Ihnen optimale Voraussetzungen für eine erfolgreiche Vermarktung. Unser Leistungsportfolio umfasst den gesamten Prozess: von der fundierten Marktwertermittlung über eine hochwertige Objektpräsentation bis hin zur professionellen Vermittlung an geeignete Käufer oder Mieter.
Mit Erfahrung, Engagement und einem starken Netzwerk stehen wir Ihnen in jeder Phase verlässlich zur Seite und sorgen für eine effiziente, transparente und zielgerichtete Abwicklung.
Gerne beraten wir Sie persönlich, unverbindlich und selbstverständlich kostenlos. Wir freuen uns auf Ihre Kontaktaufnahme.
Ihr Ansprechpartner:
Stephan Närger : Mobil 017684043716 oder
stephan.naerge(at)falcimmo.de
Unsere kostenlose Hotline erreichen Sie 7 Tage in der Woche unter:
0800 - 646 0 646
Ausstattung
- Bad
- Wanne
- Heizungsart
- Etage
- Befeuerung
- Gas
- Unterkellert
- Keller
- Abstellraum
- Gäste-WC
Energiepass
- Energieausweistyp
- Bedarfsausweis
- Gültig bis
- 13.10.2032
- Energiebedarf
- 188.6
- Energieträger
- Gas
- Energieeffizienzklasse
- F
- Ausstelldatum
- 14.10.2022
- Geltende EnEV
- 2014
- Gebäudeart
- Wohngebäude
Kontaktperson
- Firma
- FALC Immobilien Brüggen
- Name
- Närger
- Vorname
- Stephan
- Strasse
- Borner Str.
- Hausnummer
- 8
- PLZ
- 41379
- Ort
- Brüggen
- Email Zentrale
- stephan.naerger@falcimmo.de
- Telefon Zentrale
- +49 800 6460646
- Fax
- +49 2242 9010319
- Mobil
- +49 176 84043716
- Webseite / URL
- www.falcimmo.de
Immobiliendetails
- Objektnummer
- FALC-SN-68468
- Vermarktung
- Verkauf
- Objektart
- ETAGE, Wohnung
Kosten
- Kaufpreis
- 198.500,00 €
- Provision
- 3,57 % inkl. 19 % MwSt. vom notariellen Kaufpreis inkl. MwSt.
Flächen
- Wohnfläche
- 104,0 m²
- Gesamtfläche
- 104,0 m²
- Anzahl Zimmer
- 3,0
- Anzahl Schlafzimmer
- 2,0
- Anzahl Badezimmer
- 1,0
Zustand
- Baujahr
- 1900
- Zustand
- Teil/Vollrenoviert
- Frei ab
- nach Absprache





















