• 86911 Dießen am Ammersee
  • Kaufpreis1.369.900,00 €
  • Kaufpreis pro m²7.696,80 €
  • Wohnfläche188,4 m²
  • Grundstück 935,0 m²
  • Anzahl Zimmer 5,0
  • Objektnummer FALC-MK-76229

Neubau-Traum am Ammersee – Modernes Einfamilienhaus in Dießen

Objektbeschreibung

Objekttitel

Neubau-Traum am Ammersee – Modernes Einfamilienhaus in Dießen

Lage

Dießen am Ammersee liegt am südwestlichen Ufer des Ammersees und gehört zum Landkreis Starnberg. Die Gemeinde liegt im bayerischen Voralpenland und überzeugt nicht nur durch seine prächtige Uferpromenade, sondern auch durch die umliegende Natur mit angrenzenden Wäldern und dem See.

Neben den Geschäften für den alltäglichen Bedarf, finden sich hier auch Ärzte und Banken. Das Zentrum ist dabei in nur wenigen Gehminuten erreichbar. Verschiedene Restaurants und Cafés bieten Ihnen, in unmittelbarer Nähe, eine vielfältige Auswahl für jeden Gaumen.

Das vielfältige Vereins- und Kulturleben, sowie diverse sportliche Freizeit- und Unterhaltungsmöglichkeiten ermöglichen ausreichend Raum zum Abschalten und Genießen. Wer es ein wenig ruhiger mag, kommt in den nahen liegenden Grünanlagen auf seine Kosten.

Auch für Ihre lieben Kleinen ist hier bestens gesorgt. Es gibt mehrere Kindergärten, eine Grund- und Mittelschule, die Liebfrauen-Mädchen-Schule und ein Gymnasium.

Die Autobahn A96 erreichen Sie in ca. 20 Minuten. Von hier aus können Sie bereits in wenigen Fahrminuten die idyllischen Gemeinden um München herum, sowie die Innenstadt selbst, besuchen.

Ausstatt_beschr

Im Preis enthalten (Ausbauhaus):

- Ihr Energieeffizienzhaus (in KfW40 Standard möglich)
- inkl. Bodenplatte
- inkl. Kaufpreis für das Grundstück
- Architektenleistung (Bauplanung inkl. Genehmigungsplanung)
- Vermessungsleistung (zur Erstellung des Bauantrags)
- inkl. Bodengutachten
- Sicherheitshaustüre
- 3-fach verglaste Fenster im ganzen Haus (außer Dachflächenfenster)
- Dachrinnen und Fallrohre PCV weiß
- elektrische Rollläden im EG & OG
- wartungsfreie Aluminiumfensterbänke
- Material für den Trockenbau inkl. Dämm- und Beplankungspaket
- inklusive Lieferung und Hausmontage (Ausbauhaus)

Optional möglich:
- kontrollierte Be- und Entlüftungsanlage mit Wärmerückgewinnung
- Luft-Wasser-Wärmepumpe
- Dachgaube
- Holzverkleidung


Selbstverständlich bieten wir Ihnen verschiedenen Ausbaustufen des Hauses an. Vom Rohbauhaus bis hin zu schlüsselfertig, stehen Ihnen alle Möglichkeiten zur Verfügung.

Objektbeschreibung

Im schönen Dießen am Ammersee entsteht in Kürze ein modernes Einfamilienhaus, welches Sie herzlich willkommen heißt. Das Haus verfügt über 5 Zimmer, die sich auf insgesamt ca. 199 m² Wohn- und Nutzfläche verteilen. Die Diele ist geräumig und bietet ausreichend Platz für Ihre Garderobe. Von hieraus erreichen Sie alle Räume, gleich zu Ihrer linken Seite befinden sich das Gäste-WC sowie Ihr Büro oder Gästezimmer. Zu Ihrer rechten Seite befindet sich der Technikraum.

Geradeaus gelangen Sie in den großzügig geschnittenen Wohn- und Essbereich, welcher mit seiner Größe von ca. 58 m² viel Platz für Sie und Ihre Familie bietet. Das offene Raumkonzept wird durch eine traumhafte Küche abgerundet, in der Kochen zum Highlight wird. Durch die bodentiefen Fenster ist der Raum lichtdurchflutet und Sie gelangen von hier über die Terrasse gleich in Ihren wunderschönen Garten.

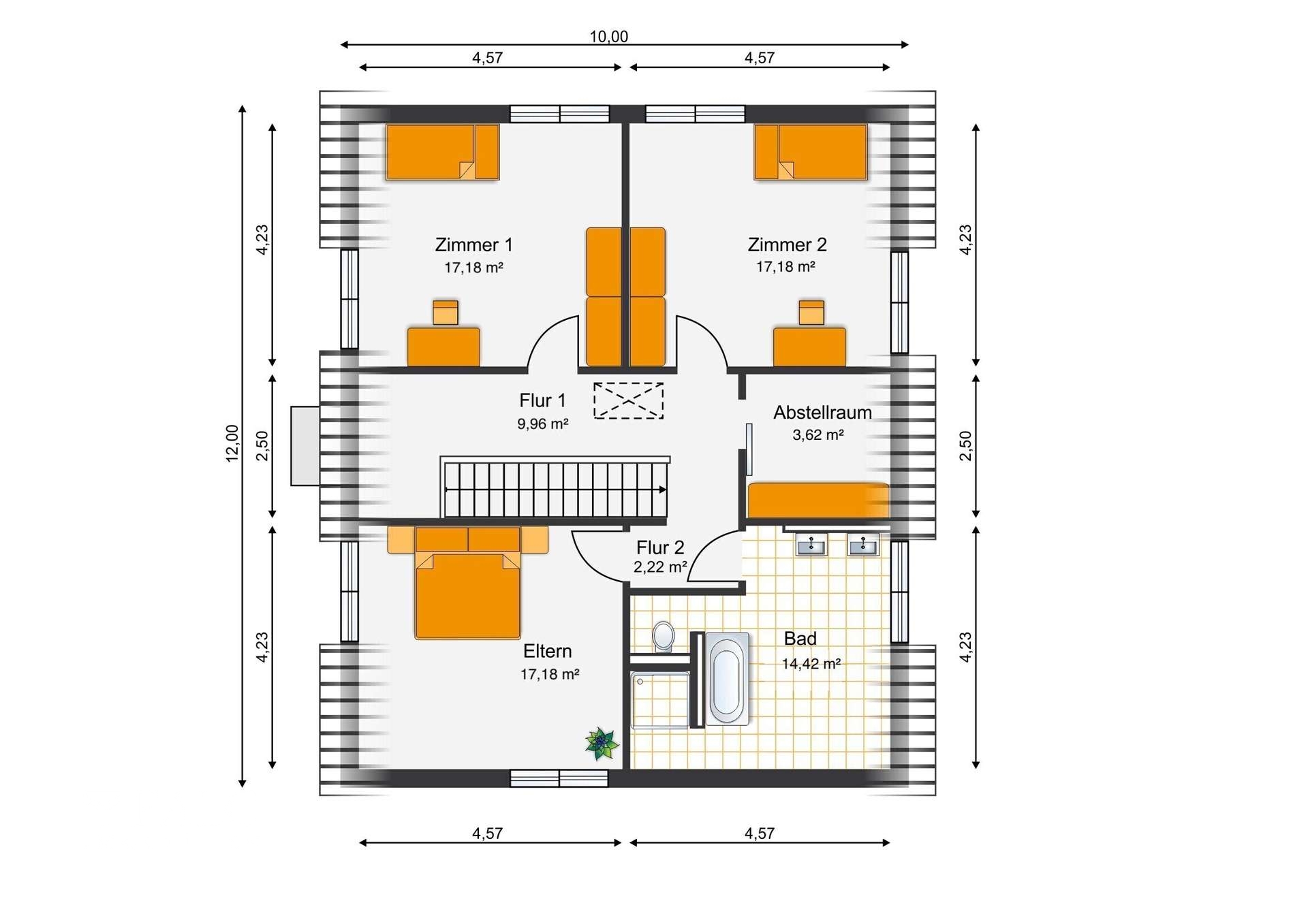
Im Obergeschoss befinden sich das Elternschlafzimmer, die beiden großen Kinderzimmer, das Badezimmer mit Badewanne und Dusche, sowie ein praktischer Abstellraum.

Die intelligente Planung der Häuser lässt keine Wünsche offen, dennoch haben Sie die Möglichkeit, Ihre eigenen Gestaltungswünsche mit einzubringen. So kann beispielsweise der Grundriss verändert und Ihren individuellen Bedürfnissen angepasst werden.

Sie interessieren sich für das Einfamilienhaus? Dann vereinbaren Sie einen individuellen Beratungstermin! Ich freue mich auf Ihre Anfrage.

Der Energieausweis wird erstellt.

Sonstige_angaben

Bei Interesse zögern Sie nicht und vereinbaren Sie einen unverbindlichen Termin.

Wir bieten nicht nur eine kostenlose Hotline, sondern auch einen Service am Wochenende an. Bei Ihrer Anfrage geben Sie bitte immer Ihre vollständigen Kontaktdaten an.

Besuchen Sie auch unsere Homepage www.falcimmo.de. Hier finden Sie weitere Immobilienangebote und können einen individuellen Suchauftrag generieren. Ferner finden Sie umfangreiche Informationen zum Thema Immobilie und Finanzierung.

Die Abbildungen können auch Zubehör, Sonderausstattungen oder sonstige Umfänge enthalten, die nicht zum serienmäßigen Liefer- oder Leistungsumfang gehören.

Die Informationen zu diesem Angebot sind sorgfältig recherchiert, dennoch beruhen Sie auf Angaben von Dritten. Für die Vollständigkeit und Richtigkeit können wir daher keine Gewähr übernehmen. Bitte beachten Sie, dass die Grundrisse nicht immer maßstabsgetreu sind und nur zum besseren Verständnis der Raumaufteilung dienen. Das Angebot ist freibleibend, Irrtum und Zwischenverkauf sind vorbehalten. Die Informationen sind ausschließlich für den Empfänger bestimmt, eine Weitergabe an Dritte ist nicht gestattet.

Ausstattung

  • Heizungsart
  • Fussboden
  • Befeuerung
  • Luftwärmepumpe
  • Gartennutzung
  • Gäste-WC

Energiepass

Energieskala
  • Energieausweistyp
  • Bedarfsausweis
  • Gültig bis
  • 30.11.2032
  • Energiebedarf
  • 20
  • Energieträger
  • Luftwärmepumpe
  • Energieeffizienzklasse
  • A PLUS
  • Ausstelldatum
  • 29.11.2022
  • Geltende EnEV
  • 2014
  • Gebäudeart
  • Wohngebäude

Kontaktperson

Firma
FALC Immobilien München
Name
Kenner
Vorname
Manfred
Strasse
Luise-Kiesselbach-Platz
Hausnummer
31
PLZ
81377
Ort
München
anfragen-muc@falcimmo.de
Telefon Zentrale
0175 417 3 526
Fax
+49 2242 9010319
Mobil
+49 175 4173526
Webseite / URL
https://www.falcimmo.de/immobilien-muenchen.html
FALC Immobilien München

Immobiliendetails

  • Objektnummer
  • FALC-MK-76229
  • Vermarktung
  • Verkauf
  • Objektart
  • Haus, EINFAMILIENHAUS

Kosten

  • Kaufpreis
  • 1.369.900,00 €
  • Kaufpreis pro m²
  • 7.696,80 €

Flächen

  • Wohnfläche
  • 188,4 m²
  • Nutzfläche
  • 10,0 m²
  • Grundstücksfläche
  • 935,0 m²
  • Gesamtfläche
  • 198,4 m²
  • Anzahl Zimmer
  • 5,0
  • Anzahl Schlafzimmer
  • 3,0
  • Anzahl Badezimmer
  • 2,0
  • Anzahl Balkone
  • 1,0

Zustand

  • Baujahr
  • 2025
  • Zustand
  • ERSTBEZUG

Karte