Wohnimmobilie mit Zukunft – Vollvermietetes Mehrfamilienhaus zur sicheren Kapitalanlage

Objektbeschreibung

Objekttitel

Wohnimmobilie mit Zukunft – Vollvermietetes Mehrfamilienhaus zur sicheren Kapitalanlage

Lage

Das Objekt befindet sich in absolut zentraler Innenstadtlage von Bad Marienberg, einem gepflegten Heilklimatischen Kurort im Herzen des Westerwaldes. Die Stadt zeichnet sich durch ihre charmante Kombination aus historischer Bausubstanz, modernen Versorgungsangeboten und naturnahem Lebensgefühl aus. Dank ihrer guten Infrastruktur und des stetigen Besucheraufkommens genießt Bad Marienberg nicht nur bei Einwohnern, sondern auch bei Kurgästen, Touristen und Gewerbetreibenden einen hervorragenden Ruf.

Die Lage der Immobilie ist geprägt durch eine sehr gute fußläufige Erreichbarkeit aller Einrichtungen des täglichen Bedarfs: Einkaufsmöglichkeiten, Ärzte, Apotheken, Cafés und Restaurants befinden sich in unmittelbarer Umgebung. Die direkte Nähe zur Fußgängerzone sowie zu öffentlichen Einrichtungen wie Rathaus, Banken und medizinischen Versorgungszentren macht das Objekt sowohl für Mieter als auch für Gewerbekunden äußerst attraktiv.

Verkehrstechnisch ist Bad Marienberg sehr gut angebunden. Über die nahegelegenen Bundesstraßen B255 und B414 sowie die Autobahn A3 (Köln–Frankfurt) ist eine schnelle Anbindung an die Oberzentren Montabaur, Koblenz und Siegen gewährleistet. Der ICE-Bahnhof in Montabaur ist in ca. 25 Minuten erreichbar und bietet direkte Verbindungen nach Frankfurt und Köln – ein echter Standortvorteil für Pendler und Berufstätige.

Auch der Freizeitwert der Region ist hoch: Die reizvolle Mittelgebirgslandschaft des Westerwaldes mit ihren Wäldern, Wanderwegen, Radstrecken und Naherholungsgebieten zieht Naturfreunde und Aktivurlauber gleichermaßen an. Die beliebte Kur- und Parklandschaft in Bad Marienberg trägt zusätzlich zur hohen Lebensqualität bei.

Insgesamt bietet die Lage eine hervorragende Kombination aus Urbanität, Zentralität und naturnahem Umfeld – beste Voraussetzungen für eine nachhaltige Vermietbarkeit und langfristige Wertstabilität der Immobilie.

Ausstatt_beschr

Dieses ansprechende Mehrfamilienhaus überzeugt durch eine durchdachte, funktionale Ausstattung, die sowohl bei Mietern als auch bei Investoren auf ganzer Linie punktet. Die 13 Wohneinheiten sind modern geschnitten und bieten durchweg ein angenehmes, wohnliches Ambiente. Jede Einheit verfügt über einen eigenen Balkon – ein wertvolles Ausstattungsmerkmal, das besonders in ländlich geprägten Regionen wie Bad Marienberg bei Mietinteressenten sehr gefragt ist. Ob als Rückzugsort im Alltag oder für gesellige Stunden im Freien – die Balkone steigern nachweislich die Wohnqualität und fördern eine langfristige Mieterbindung.

Die Wohnungen sind mit pflegeleichten und zugleich langlebigen Bodenbelägen ausgestattet: Fliesen in den Nassbereichen sorgen für eine funktionale und zeitlose Optik, während in den Wohn- und Schlafräumen hochwertiger Laminatboden verlegt wurde, der Wärme und Gemütlichkeit ausstrahlt. Die Ausstattung ist bewusst auf Langlebigkeit und Mietfreundlichkeit ausgelegt – ein klarer Vorteil für Kapitalanleger, die auf stabile Mieteinnahmen und geringe Instandhaltungskosten setzen.

Für die Wärmeversorgung sorgt eine zentrale Gasheizung, die das gesamte Objekt effizient und zuverlässig mit Heizwärme versorgt. Die zentrale Versorgung senkt nicht nur den Wartungsaufwand, sondern sorgt auch für eine gleichmäßige Energiebilanz – ein weiterer Pluspunkt im Hinblick auf die Wirtschaftlichkeit.

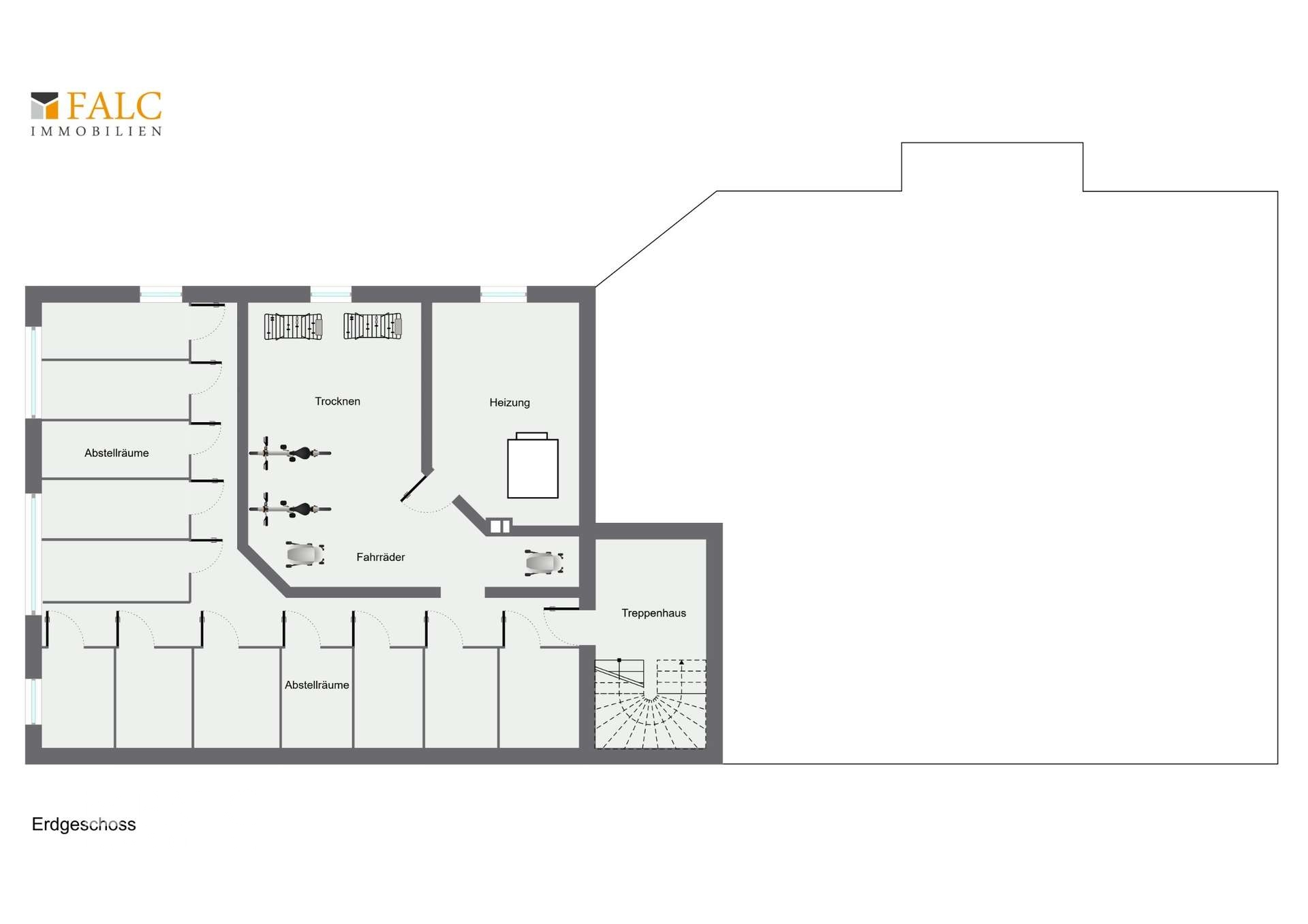
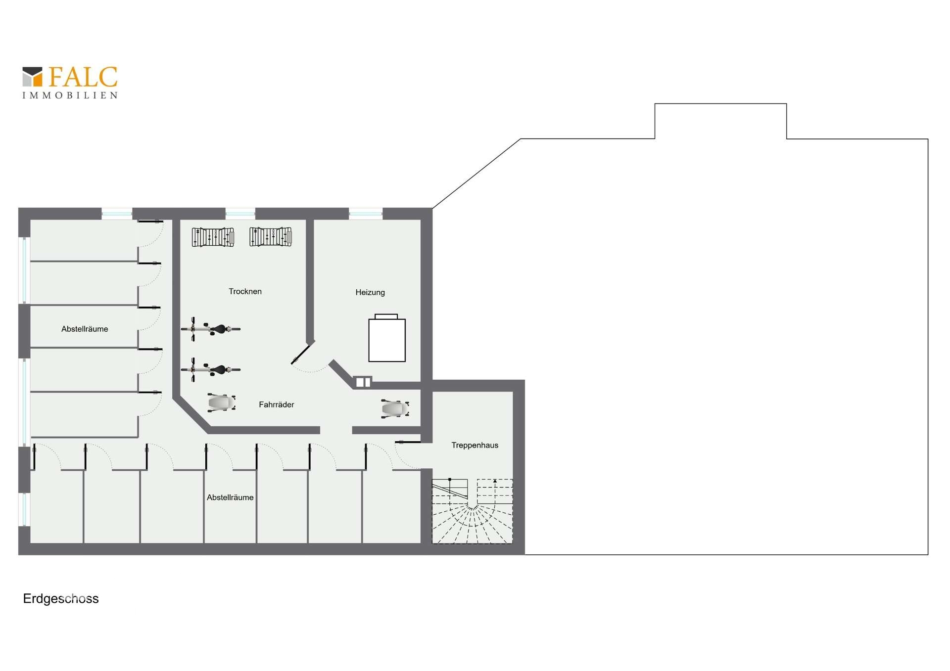
Ein praktisches Detail mit echtem Mehrwert: Jeder Wohnung ist ein eigener Kellerraum zugeordnet, der zusätzlichen Stauraum für die Mieter schafft. Dies erhöht nicht nur die Funktionalität der einzelnen Wohnungen, sondern ist in der Mietpraxis ein oft nachgefragtes Kriterium.

Das Wohnhaus befindet sich auf einem ca. 823 m² großen Grundstück in ruhiger, gewachsener Lage. Die Umgebung ist geprägt von gepflegten Nachbarhäusern und einer angenehmen Wohnatmosphäre – ideale Bedingungen für langfristige Mietverhältnisse. Direkt vor dem Gebäude stehen den Bewohnern ausreichend Pkw-Stellplätze zur Verfügung, die den Alltag komfortabel machen und den Wohnwert zusätzlich steigern.

Die Immobilie verteilt sich auf drei übersichtliche Etagen, was sowohl die Erschließung vereinfacht als auch die Verwaltung effizient gestaltet. Insgesamt bietet das Gebäude eine ausgewogene Mischung aus 2- bis 3-Zimmer-Wohnungen mit Wohnflächen zwischen ca. 48 m² und 82 m² – ein attraktiver Wohnungsmix, der sich ideal an die Nachfrage vor Ort anpasst und eine nachhaltige Vermietung sicherstellt.

Insgesamt bietet die Ausstattung eine stabile, wertorientierte Basis für ein langfristiges Investment mit hervorragender Vermietbarkeit und minimalem Verwaltungsaufwand. Die Kombination aus Lage, Substanz, Mieterstruktur und Ausstattung macht dieses Objekt zu einer besonders attraktiven

Objektbeschreibung

Dieses attraktive Mehrfamilienhaus in ruhiger und zugleich zentraler Lage von Bad Marienberg (Rheinland-Pfalz) bietet Kapitalanlegern eine hervorragende Gelegenheit zur Investition in eine renditestarke Immobilie mit langfristigem Wertsteigerungspotenzial.

Das im Jahr 1996 errichtete Wohnhaus befindet sich in einem gepflegten Zustand und überzeugt durch seine klare Architektur sowie eine funktionale, durchdachte Aufteilung. Auf drei Etagen verteilen sich insgesamt 13 Wohneinheiten mit einer Gesamtwohnfläche von ca. 821 m². Die einzelnen Wohnungen haben Größen von etwa 48 m² bis 82 m² und sind damit sowohl für Singles und Paare als auch für kleine Familien ideal zugeschnitten. Jede Wohnung verfügt über einen eigenen Balkon, was den Wohnkomfort erheblich steigert und die Vermietbarkeit zusätzlich erhöht.

Das Gebäude steht auf einem ca. 823 m² großen Grundstück und ist vollständig unterkellert. Die Wohnungen sind allesamt seit vielen Jahren gut vermietet. Die Mieterstruktur ist stabil, geprägt von langjährigen Mietverhältnissen mit überwiegend ruhigen und zuverlässigen Mietern. Ein äußerst geringer Mieterwechsel sorgt für planbare Mieteinnahmen und minimiert Verwaltungsaufwand sowie Mietausfallrisiken – ein entscheidender Vorteil für Investoren, die auf Bestandsimmobilien mit nachhaltiger Rendite setzen.

Dank der soliden Bauweise, regelmäßiger Instandhaltungen und einem verantwortungsbewussten Umgang mit der Immobilie befindet sich das Gebäude in einem technisch wie optisch ansprechenden Zustand. Auch die Außenanlagen präsentieren sich gepflegt und bieten den Bewohnern ein angenehmes Wohnumfeld.

Die Lage in Bad Marienberg – einer Kurstadt im Westerwaldkreis – überzeugt durch eine gute Infrastruktur, eine hohe Lebensqualität sowie die Nähe zu wichtigen Wirtschaftszentren. Einkaufsmöglichkeiten, Ärzte, Schulen, Gastronomie und öffentliche Verkehrsmittel sind fußläufig erreichbar. Gleichzeitig bietet die naturnahe Umgebung mit zahlreichen Freizeit- und Erholungsmöglichkeiten eine hohe Wohnattraktivität, was sich positiv auf die Vermietungslage auswirkt.

Sonstige_angaben

Sofern Sie auf eine ruhige und doch zentrale Lage, eine beeindruckende Aufteilung und ein gehobenes Umfeld Wert legen, ist dieses Objekt das ideale Angebot für Sie.

Wir bieten Ihnen eine kostenlose 24/7 Hotline (0800-6460646) an. Bei Interesse fordern Sie einfach das Exposé mit einigen weiteren Inhalten an. Dieses wird Ihnen automatisch i. d. R. kurzfristig zugesandt. Bei einem Besichtigungswunsch antworten Sie am besten per Mail auf das Exposé, wir melden uns dann umgehend mit Terminvorschlägen bei Ihnen. Bitte geben Sie immer Ihre vollständigen Kontaktdaten an.

Die Objektbeschreibung beruht ganz oder zum Teil auf Angaben des Eigentümers. Für die Richtigkeit oder Vollständigkeit übernehmen wir keine Gewähr.

Sie wollen Ihre Immobilie ebenfalls professionell vermarkten, rufen Sie uns an, wir stehen Ihnen von Mo. bis So. von 6.00 - 22.00 h persönlich zur Seite, über 200.000 aktive Interessenten warten bereits auf Sie.

Die Inhalte und Bilder dieses Exposés könnten mithilfe von künstlicher Intelligenz (KI) erstellt worden sein.

Ausstattung

  • WG-Geeignet
  • Küche
  • Einbauküche
  • Stellplatzart
  • Außenstellplatz
  • Unterkellert
  • Keller
  • Abstellraum
  • Gäste-WC

Energiepass

  • Geltende EnEV
  • Liegt bei Besichtigung vor
  • Gebäudeart
  • Wohngebäude

Kontaktperson

Firma
FALC Immobilien Hennef
Name
Grießhammer
Vorname
Marc
Strasse
Humperdinckstraße
Hausnummer
3
PLZ
53773
Ort
Hennef (Sieg)
marc.griesshammer@falcimmo.de
Telefon Zentrale
+49 2242 9010341
Fax
+49 2242 9010319
Webseite / URL
www.falc-hennef.de
FALC Immobilien Hennef

Immobiliendetails

  • Objektnummer
  • FALC-MAG-73317
  • Vermarktung
  • Verkauf
  • Objektart
  • Haus, MEHRFAMILIENHAUS

Kosten

  • Kaufpreis
  • 1.399.000,00 €
  • Provision
  • 3,57 % inkl. 19 % MwSt. vom notariellen Kaufpreis inkl. MwSt.

Flächen

  • Wohnfläche
  • 821,0 m²
  • Grundstücksfläche
  • 823,0 m²
  • Gesamtfläche
  • 821,0 m²
  • Anzahl Zimmer
  • 20,0
  • Anzahl Badezimmer
  • 13,0
  • Anzahl Balkone
  • 1,0

Zustand

  • Zustand
  • Modernisiert
  • Frei ab
  • nach Absprache

Karte