- 90762 Fürth
- Kaufpreis1.690.000,00 €
- Provision3,57% inkl. MwSt. inkl. MwSt.
- Wohnfläche1.037,0 m²
- Grundstück 610,0 m²
- Anzahl Zimmer 20,0
- Objektnummer FALC-JuSc-62601
Objektbeschreibung
Objekttitel
Drei Denkmalschutz- Mietshäuser
Lage
Inmitten des pulsierenden Stadtzentrums von Fürth bietet diese
Wohnimmobilie eine ideale Mischung aus urbanem Lebensstil und
hervorragender Anbindung. Die unmittelbare Nähe zu Schulen wie der
Berufsschule für Altenpflege und der Ludwig-Erhard-Schule macht den
Standort besonders attraktiv für Familien. Auch mehrere Kindergärten und
Hortangebote wie der Hort "Mathilde" liegen in fußläufiger Entfernung, was die
tägliche Organisation für Familien erleichtert.
Für Pendler und Reisende stellt die Nähe zum öffentlichen Personennahverkehr
einen großen Vorteil dar. Mit Bushaltestellen wie "Mathildenstr." und
"Theaterstraße" nur wenige Schritte entfernt sowie dem U-Bahn-Station "Fürth
Rathaus" in fußläufiger Reichweite, können Sie auf Ihren eigenen PKW
verzichten. Sollte doch einmal eine längere Reise anstehen, erreichen Sie den
internationalen Flughafen Nürnberg in etwa 30 Autominuten. Die Autobahnen
A73 und A3 bieten zudem schnellen Anschluss an das weitere Verkehrsnetzwerk
der Region.
Die Lage besticht durch eine bemerkenswerte Vielfalt an
Einkaufsmöglichkeiten und Gastronomie. Supermärkte wie NORMA und der
Europa-Lebensmittel-Markt sind bequem erreichbar, während Restaurants wie
Pastarello und Pizza e Pasta Venezia kulinarische Vielfalt garantieren. Das
nahegelegene Stadtmuseum und die Comödie bieten kulturelle Abwechslung
direkt vor Ihrer Haustür.
Für die gesundheitliche Versorgung sorgen mehrere nahe Ärzte und Apotheken
sowie das Medic-Center an der Schwabacher Straße. Sportlich Aktive werden
das Now Sports Fitnessstudio und die Jahnturnhalle zu schätzen wissen.
In der Umgebung finden sich charmante Straßen mit individuellen
Einzelhandelsgeschäften und gepflegten Grünanlagen, die zu einem
Spaziergang einladen. Die Schillerstraße selbst zeichnet sich durch eine
harmonische Mischung aus historischen Bauelementen und modernem
Stadtleben aus, was den besonderen Reiz dieses Stadtteils unterstreicht.
Entscheiden Sie sich für ein Zuhause, das nicht nur durch seine zentrale Lage,
sondern auch durch eine starke Gemeinschaft und ein vielfältiges Angebot
besticht. Hier finden Sie die perfekte Balance zwischen urbaner Dynamik und
familiärem Wohlbefinden.
Objektbeschreibung
Das angebotene historische Sandsteinhaus in zentraler Lage von Fürth ist ein denkmalgeschütztes Mehrfamilienhaus, das aus drei getrennten Gebäuden besteht und zehn Wohneinheiten bietet.
Es beeindruckt durch seinen Altbau-Charme, hochwertige Kupferspenglerarbeiten und großzügige Grundrisse.
Wesentliche Details: Objekttyp: Mehrfamilienhaus
Lage: Ruhige, begrünte Seitenstraße im Zentrum von Fürth, nahe der Theaterstraße (Sanierungsgebiet).
Baujahr:1866 Historisches Gebäude, unter Denkmalschutz.
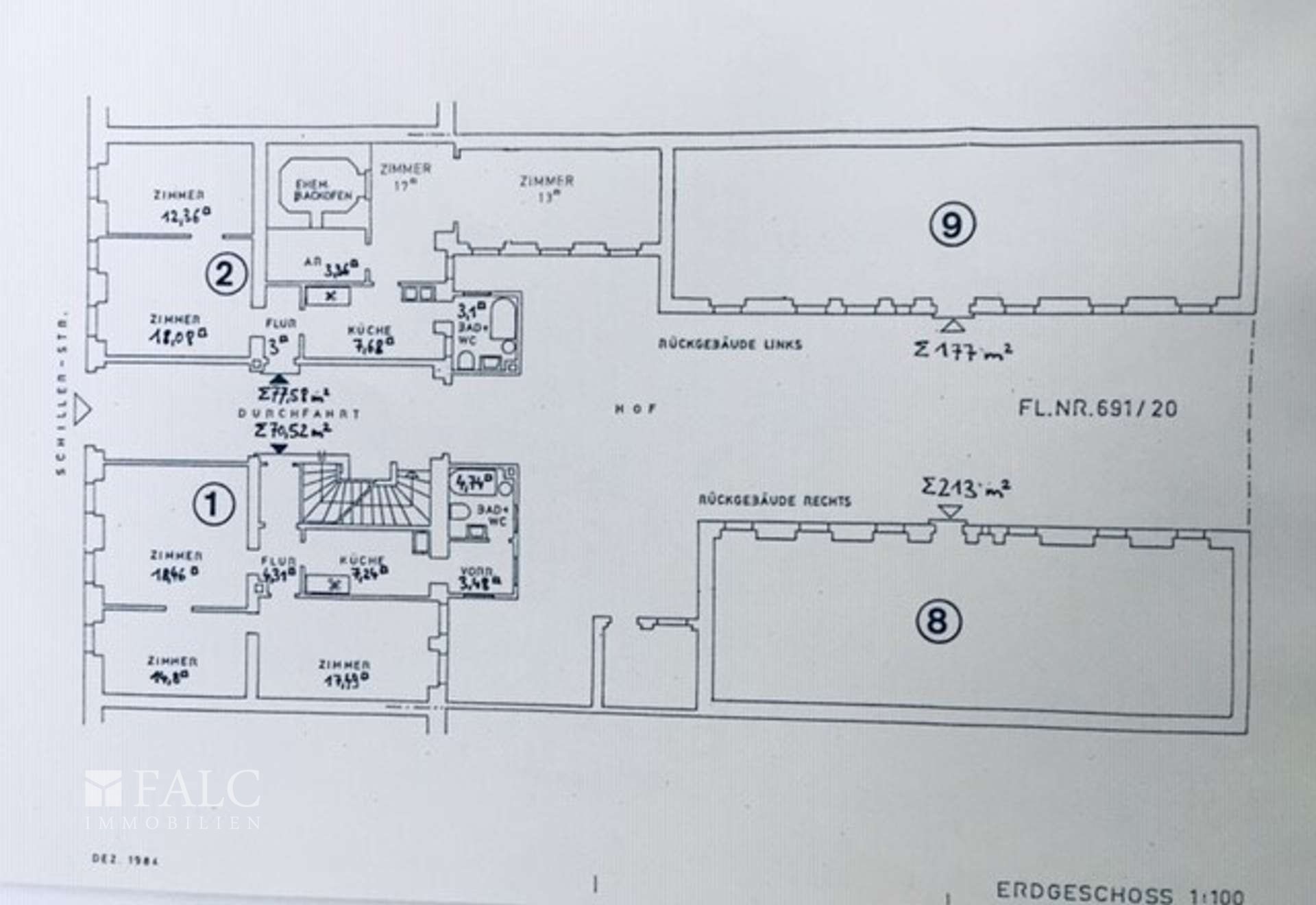
Wohneinheiten: 10 Einheiten (8 im Vorderhaus, 2 in den Rückgebäuden).
Wohnfläche: 1.037 m².
Grundstücksfläche: ca. 610 m².
Etagen: vier Vollgeschosse und ein ausbaufähiger Speicher.
Kaufpreis: 1.690.000 €.
Jährliche Kaltmieteinnahmen: 61.020 € (steigerungsfähig).
Objekttyp: Mehrfamilienhaus
Objektbeschreibung
Dieses charmante viergeschossige Sandsteinhaus befindet sich in einer ruhigen Seitenstraße im Herzen von Fürth. Die Ost-West-Lage sorgt für eine ideale Belichtung, während die ruhige und begrünte Umgebung eine angenehme Wohnatmosphäre schafft. Keine Industrie o.ä. in der Nähe- Sie werden die Ruhe und das gute Luft dort genießen! Alle drei Gebäuden stehen unter Denkmalschutz und beeindrucken durch historische Details, bestens erhaltene, gepflegte Holz-Fußboden von 1866, ein historischer, perfekt erhaltener großer Backofen mit Instrumenten sowie die historisch getreuen Spenglerarbeiten aus hochwertigem Kupfer für das Dach des Badanbaus, die Dachrinnen und Fallrohre.
Das Hauptgebäude umfasst acht großzügig geschnittene Wohneinheiten,
während im Innenhof zwei Rückgebäude jeweils zwei weitere Wohneinheiten
beherbergen. Die Wohnungen im Hauptgebäude haben eine Größe zwischen
ca. 70 m² und 92 m² und zeichnen sich durch ihre Großzügigkeit und den
klassischen Altbau-Charme aus.
Der Dachboden des Vorderhauses wird derzeit als Stauraum genutzt, bietet
jedoch erhebliches Potenzial für einen weiteren Ausbau . Zudem ist das
Vordergebäude teilweise unterkellert, was zusätzlichen Stauraum oder
Lagermöglichkeiten bietet. Balkone lassen sich relativ einfach nachrüsten.
Das linke Hofhaus (177 m²) wird von einer Wohngemeinschaft genutzt und
verfügt über ein relativ neues Bad (2003) sowie eine Toilette pro Etage.; ideal für
eine WG-Nutzung mit Einzelzimmern. Ähnlich das rechte Hofhaus (213 m²) mit
zwei relativ neuen Bädern und einer Toilette pro Etage.
Besonderheiten des Objekts
Denkmalgeschütztes Gebäude: Das historische Sandsteinhaus ist ein Zeitzeuge
und bietet charmante Altbau-Elemente.
Zentrale Lage: In unmittelbarer Nähe zur Innenstadt und allen wichtigen
Einrichtungen des täglichen Bedarfs.
Sanierungsgebiet Theaterstraße: Als Teil eines städtebaulichen
Sanierungsgebiets bietet das Objekt dem Käufer attraktive
Fördermöglichkeiten und Zuschüsse.
Wertvolle Kupferarbeiten: das Dach des Badanbaus, alle Dachrinnen und
Fallrohre bestehen aus hochwertigem Kupfer, ein besonderes Highlight und
langlebiges Material. Modernisierter Kabelanschluss und Türsprechanlage
vorhanden.
Großzügige Grundrisse: Die Wohnungen zeichnen sich durch helle und
großzügig geschnittene Räume aus, die viel Raum für individuelle
Gestaltungsmöglichkeiten bieten. Besonders hervorzuheben sind die bestens
erhaltenen Holzfußböden und ein alter Backofen; dies schafft einen ganz
besonderen Altbau-Charme.
Potenzial und Nutzungsmöglichkeiten
Das Dachgeschoss bietet Ausbaupotenzial und könnte in zusätzlichen
Wohnraum umgewandelt werden. Zudem bietet der Innenhof nicht nur Platz
für die vorhandenen Rückgebäude - das bestens besonnte rechte Gebäude
würde sich für eine Dachterrasse anbieten! - sondern könnte auch anderweitig
genutzt werden, z. B. für Zweirad-Stellplätze oder einen erweiterten
Gartenbereich.
Zusammenfassung
Dieses einzigartige Sandsteinhaus mit seinen zwei Hofhäusern in bester Fürther
Lage ist ideal für Investoren oder Eigennutzer, die den Charme historischer
Bauten und das Potenzial einer entwicklungsfähigen Immobilie im
Sanierungsgebiet schätzen. Mit großzügigen Wohnflächen, einer ruhigen Lage
in der Innenstadt und zusätzlichen Fördermöglichkeiten ist dieses Objekt eine
seltene Gelegenheit auf dem Fürther Immobilienmarkt.
Sonstige_angaben
Wir bieten Ihnen eine kostenlose 24/7 Hotline (0800-6460646) an. Bei Interesse fordern Sie einfach das Exposé mit einigen weiteren Inhalten an. Dieses wird Ihnen automatisch i.d.R. kurzfristig zugesandt.
Bei einem Besichtigungswunsch antworten Sie am besten per Mail auf das Exposé, wir melden uns dann umgehend mit Terminvorschlägen bei Ihnen. Bitte geben Sie immer Ihre vollständigen Kontaktdaten an.
Die Objektbeschreibung beruht ganz oder zum Teil auf Angaben des Eigentümers. Für die Richtigkeit oder Vollständigkeit übernehmen wir keine Gewähr.
Ausstattung
- WG-Geeignet
- Abstellraum
Energiepass
- Geltende EnEV
- Nicht nötigt
- Gebäudeart
- Wohngebäude
Kontaktperson
- Firma
- FALC Immobilien
- Name
- Schmidt
- Vorname
- Judita
- Strasse
- Laufamholzstr.
- Hausnummer
- 399
- PLZ
- 90482
- Ort
- Nürnberg
- Email Zentrale
- judita.schmidt@falcimmo.de
- Telefon Zentrale
- +49 800 6460646
- Fax
- +49 2242 9010319
- Mobil
- +49 176 31114648
- Webseite / URL
- www.falcimmo.de
Immobiliendetails
- Objektnummer
- FALC-JuSc-62601
- Vermarktung
- Verkauf
- Objektart
- Haus, MEHRFAMILIENHAUS
Kosten
- Kaufpreis
- 1.690.000,00 €
- Provision
- 3,57% inkl. MwSt. inkl. MwSt.
Flächen
- Wohnfläche
- 1.037,0 m²
- Grundstücksfläche
- 610,0 m²
- Anzahl Zimmer
- 20,0
Zustand
- Baujahr
- 1866
- Zustand
- Vollsaniert
- Frei ab
- sofort
Dokumente
Dokumente


















