- 52525 Heinsberg
- Kaufpreis369.000,00 €
- Wohnfläche110,0 m²
- Grundstück 205,0 m²
- Anzahl Zimmer 4,0
- Objektnummer FALC-HaGo-76099
Objektbeschreibung
Objekttitel
Hochwertige Doppelhaushälfte in exklusiver Lage von Heinsberg!
Lage
Diese Immobilie liegt in einer gut angebundenen und lebendigen Umgebung, die eine Vielzahl von Annehmlichkeiten bietet.
Für den täglichen Bedarf ist der Supermarkt in unmittelbarer Nähe eine bequeme Option. Auch die medizinische Versorgung ist gesichert, mit einer Apotheke und mehreren Arztpraxen in der Nähe.
Kulturell Interessierte werden das nahegelegene BEGAS HAUS zu schätzen wissen, das mit seinen Ausstellungen ein Highlight in der Umgebung darstellt. Für einen entspannten Abend bieten die nahegelegene Restaurants eine gemütliche Atmosphäre, um den Tag ausklingen zu lassen.
Familien profitieren von der Nähe zu mehreren Bildungseinrichtungen, darunter eine Gymnasium und eine Realschule und ein Kindergarten, welche bequem zu Fuß erreichbar sind.
Die Anbindung an den öffentlichen Nahverkehr ist hervorragend, mit mehreren Bushaltestellen in der Nähe, die eine einfache Erreichbarkeit der umliegenden Stadtteile ermöglichen. Für Reisende ist der nächste Flughafen etwa 60 Kilometer entfernt und bietet eine gute Anbindung an nationale und internationale Ziele.
Diese Lage vereint Komfort, Kultur und eine hervorragende Infrastruktur, die den Alltag erleichtert und das Leben bereichert.
Ausstatt_beschr
Alle Highlights auf einen Blick:
+ Wohnfläche: 110m²
+ Zentrale Lage
+ Nutzfläche zum Wohnen: 21m²
+ Zimmeranzahl: 4
+ Baujahr: 2000
+ Energieeffizienzklasse: F
+ Terrasse
+ große Dachterrasse vom Schlafzimmer aus
+ Keller vorhanden
+ Gäste-WC vorhanden
Objektbeschreibung
Die in massiver Bauweise erstellte Doppelhaushälfte besticht durch Qualität. Der Eigentümer,
als Mauermeister verbaute nur hochwertige Materialien. (wie z.B Tonziegel, Kupferrinne, Granitfliesen, Fenster mit innenliegenden Sprossen und vieles mehr)
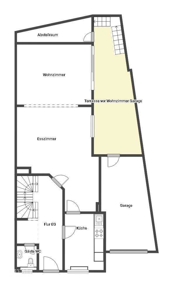
Beim Betreten dieses einladenden Hauses, das im Jahr 2000 erbaut wurde, gelangen Sie zunächst in einen großzügigen Eingangsbereich. Von hier aus führt der Weg direkt in den hellen großzügigen Wohnbereich. Dieser Raum bildet das Herzstück des Hauses und lädt mit seiner großzügigen Fensterfront zu gemütlichen Stunden mit der Familie ein.
Aufgrund Änderungen innerhalb des Hauses konnte großzügiger Wohnraum geschaffen
werden.
Durch eine Hebe/Schiebeanlage gelangt man in den Außenbereich, ein angrenzender Abstellraum eignet sich zum Beispiel für Fahrräder.
Eine anschließende Außentreppe führt zum absolutem Highlight dieses Hauses,
der tollen Dachterrasse mit Blick auf den Turm der Heinsberger Kirche.
Im Erdgeschoß befindet sich ein sehr schönes zeitloses Gäste WC, sowie eine separate Küche,
welche man auch als Büro umbauen könnte.
Eine sehr schöne Betontreppe mit Holzstufen führt in das Obergeschoss des Hauses.
Dort befindet sich ein Badezimmer mit Dusche und Wanne in zeitloser schöner Optik.
Zur Straße liegt das größere Schlafzimmer, zwei weitere Räume befinden sich im hinteren Bereich. Vom linken hinteren Raum gelangt man auf die absolut schöne Dachterrasse.
Abgerundet wird das Raumangebot durch einen geräumigen Keller, der zusätzlichen Stauraum bietet und Platz für Hobbys oder als Werkstatt genutzt werden kann.
Sonstige_angaben
+ Wichtige Informationen +
Sie erreichen uns 24/7:
Telefon: 02452 - 670 66 88 (Büro Heinsberg: erreichbar 24h)
Besuchen Sie uns vor Ort nach Absprache in unserem Büro:
Geilenkirchener Straße 13-15, 52525 Heinsberg
Sie möchten Ihre Immobilie auch so professionell und anspruchsvoll präsentiert sehen wie diese? Dann sind Sie bei uns an der richtigen Adresse! Als regionaler und erfahrener Immobilienexperte bieten wir Ihnen unseren vollständigen Service und unterstützen Sie gerne bei Ihrer Immobilienvermarktung.
Die Objektbeschreibung beruht ganz oder zum Teil auf Angaben des Eigentümers. Für die Richtigkeit oder Vollständigkeit übernehmen wir keine Gewähr.
Falc Immobilien - Kreis Heinsberg - Ihre Immobilienexperten für die Region
Ausstattung
- Ausstattungskategorie
- Gehoben
- Bad
- Dusche, Wanne, Fenster
- Küche
- Einbauküche
- Befeuerung
- Gas
- Unterkellert
- Keller
- Abstellraum
- Gäste-WC
Energiepass
- Energieausweistyp
- Bedarfsausweis
- Gültig bis
- 23.06.2035
- Energiebedarf
- 166.3
- Energieträger
- Gas
- Energieeffizienzklasse
- F
- Ausstelldatum
- 24.06.2025
- Geltende EnEV
- 2014
- Gebäudeart
- Wohngebäude
Kontaktperson
- Firma
- FALC Immobilien Heinsberg
- Name
- Görtz
- Vorname
- Harald
- Strasse
- Geilenkirchener Straße
- Hausnummer
- 13-15
- PLZ
- 52525
- Ort
- Heinsberg
- Email Zentrale
- harald.goertz@falcimmo.de
- Telefon Zentrale
- +49 2452 6706688
- Fax
- +49 2242 9010319
- Mobil
- +49 155 66003833
- Webseite / URL
- www.falcimmo.de
Immobiliendetails
- Objektnummer
- FALC-HaGo-76099
- Vermarktung
- Verkauf
- Objektart
- Haus, DOPPELHAUSHAELFTE
Kosten
- Kaufpreis
- 369.000,00 €
Flächen
- Wohnfläche
- 110,0 m²
- Nutzfläche
- 21,0 m²
- Grundstücksfläche
- 205,0 m²
- Anzahl Zimmer
- 4,0
- Anzahl Badezimmer
- 1,0
- Anzahl Stellplätze
- 2,0
- Anzahl Balkone
- 1,0
- Anzahl Terrassen
- 2,0
Zustand
- Baujahr
- 2000
- Zustand
- Gepflegt












