Mehrfamilienhaus
Objektbeschreibung
Objekttitel
Mehrfamilienhaus
Lage
Die Immobilie befindet sich in zentraler Lage der Kurstadt Hévíz in der Attila-Straße, einer der beliebtesten Straßen der Stadt.
Hévíz ist der bedeutendste Thermalkurort Ungarns und international bekannt für seinen einzigartigen natürlichen Thermalsee – den größten biologisch aktiven Thermalsee der Welt. Der Kurort ist ganzjährig geöffnet und zieht Besucher aus vielen Ländern an, die hier Heilbehandlungen sowie Wellnessaufenthalte genießen.
Ein besonderer Vorteil der Attila-Straße besteht darin, dass sie sich auf derselben Ebene wie der Thermalsee befindet. Viele andere Straßen der Stadt liegen auf Hügeln, während diese Lage einen komfortablen Zugang zum See ermöglicht – ein wichtiger Faktor insbesondere für Gäste mit gesundheitlichen Einschränkungen.
Die Stadt liegt nur etwa 6 km vom Balaton entfernt und bietet damit zusätzlich Zugang zu einer der beliebtesten Ferienregionen Mitteleuropas. Die sogenannte Balaton-Riviera mit ihren historischen Städten, Weingütern, Golfplätzen, Reitmöglichkeiten und Yachthäfen befindet sich in unmittelbarer Nähe.
Hévíz und seine Umgebung gehören zu den attraktivsten Regionen Ungarns für Immobilieninvestitionen. Die Immobilienpreise steigen seit Jahren kontinuierlich.
Ausstatt_beschr
Das Gebäude wurde Mitte der 1990er Jahre errichtet und in den Jahren 2014–2015 umfassend modernisiert. Im Zuge der Renovierung wurden sämtliche Versorgungsleitungen erneuert sowie eine moderne Wärmedämmung installiert.
Technische Ausstattung
moderne Gasheizung mit eigenem Heizkessel
zusätzliches Reserve-Heizsystem mit Festbrennstoffkessel
zentrale Wasser- und Abwasserversorgung
vollständige Wärmedämmung des Gebäudes
vorbereitete Anschlüsse im Dachgeschoss für zusätzlichen Ausbau
Apartments
Alle Gästeapartments sind als eigenständige Wohnungen konzipiert und verfügen über:
separates Schlafzimmer
Wohn- und Essbereich mit Küche
vollständig ausgestattete Küche mit Geräten und Geschirr
eigenes Badezimmer mit WC
separate Eingänge
Weitere Ausstattungsmerkmale
große Garage im Untergeschoss
mehrere Technik- und Lagerräume
Innenhof mit Parkmöglichkeiten
zusätzlicher Parkplatz auf angrenzender Fläche (ca. 600 m²), die von der Stadt dauerhaft kostenlos genutzt werden kann
Objektbeschreibung
Zum Verkauf steht ein attraktiver Immobilienkomplex in der bekannten ungarischen Kurstadt Hévíz. Das Objekt befindet sich in zentraler Lage in der Attila-Straße – einer der gefragtesten Straßen der Stadt – und wird derzeit erfolgreich als Gästehaus mit touristischer Vermietung betrieben.
Der Komplex kann als Mehrfamilienhaus, Mehrgenerationshaus oder Gästehaus genutzt werden. Durch eine möglich hohe Rendite könnten die Wohnungen auch getrennt von einander verkauft werden!
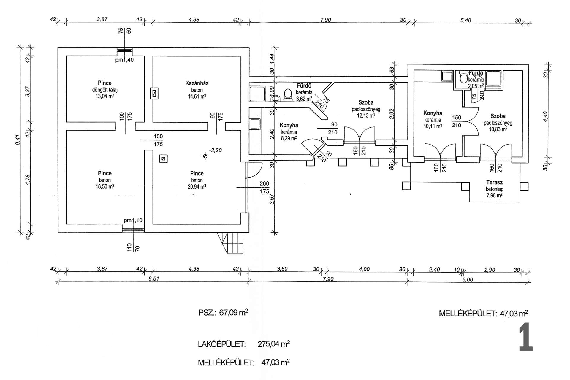
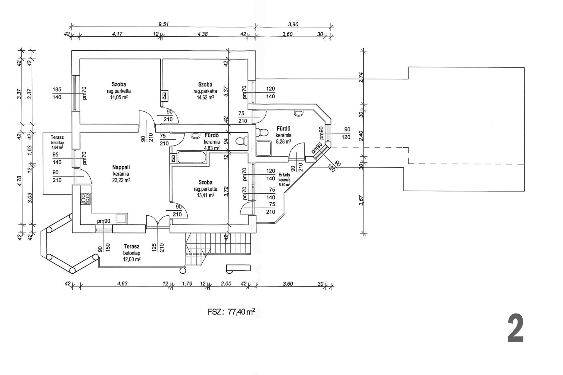
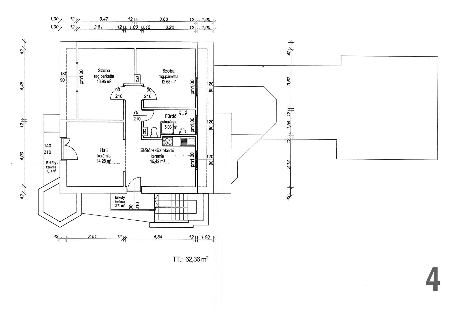
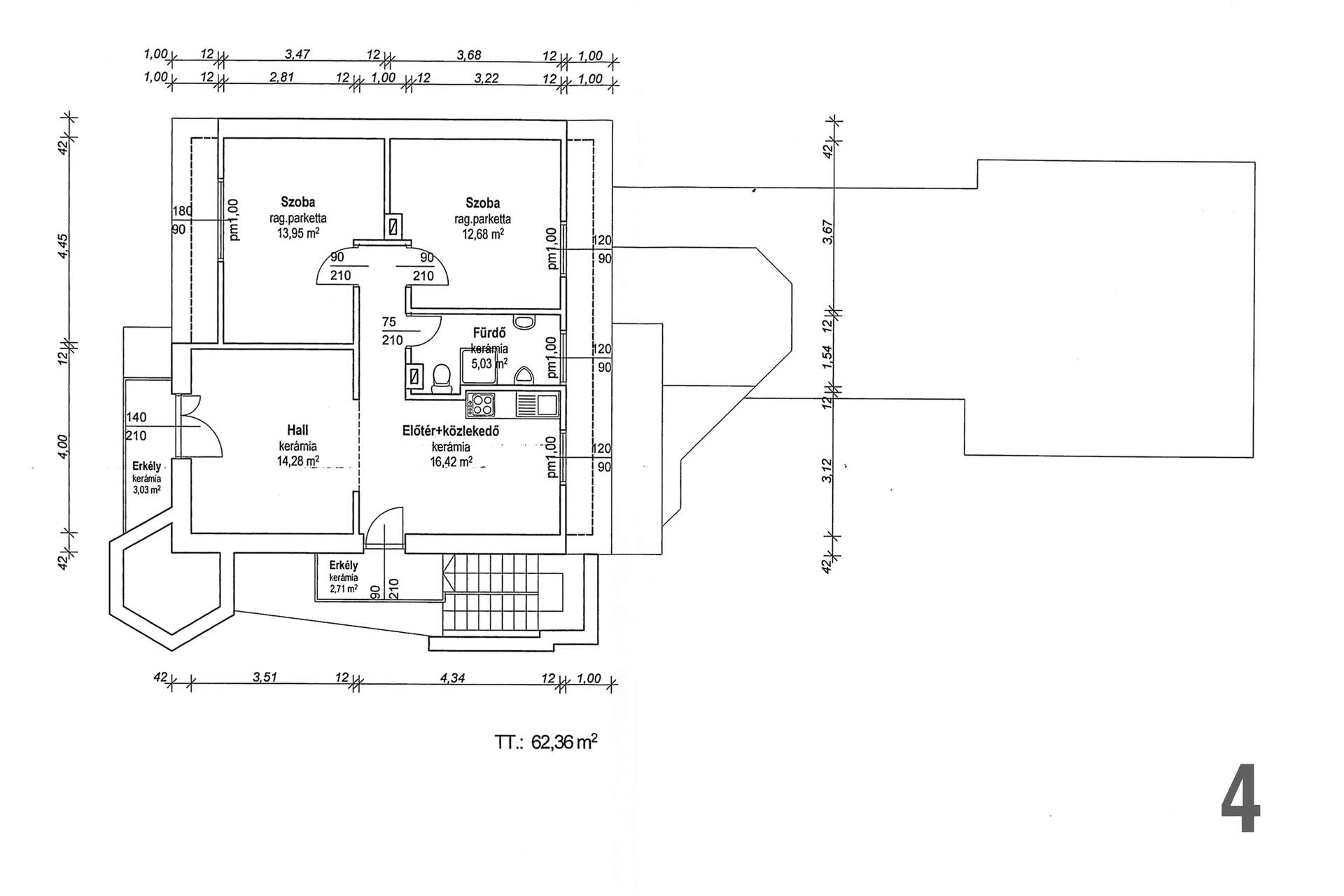
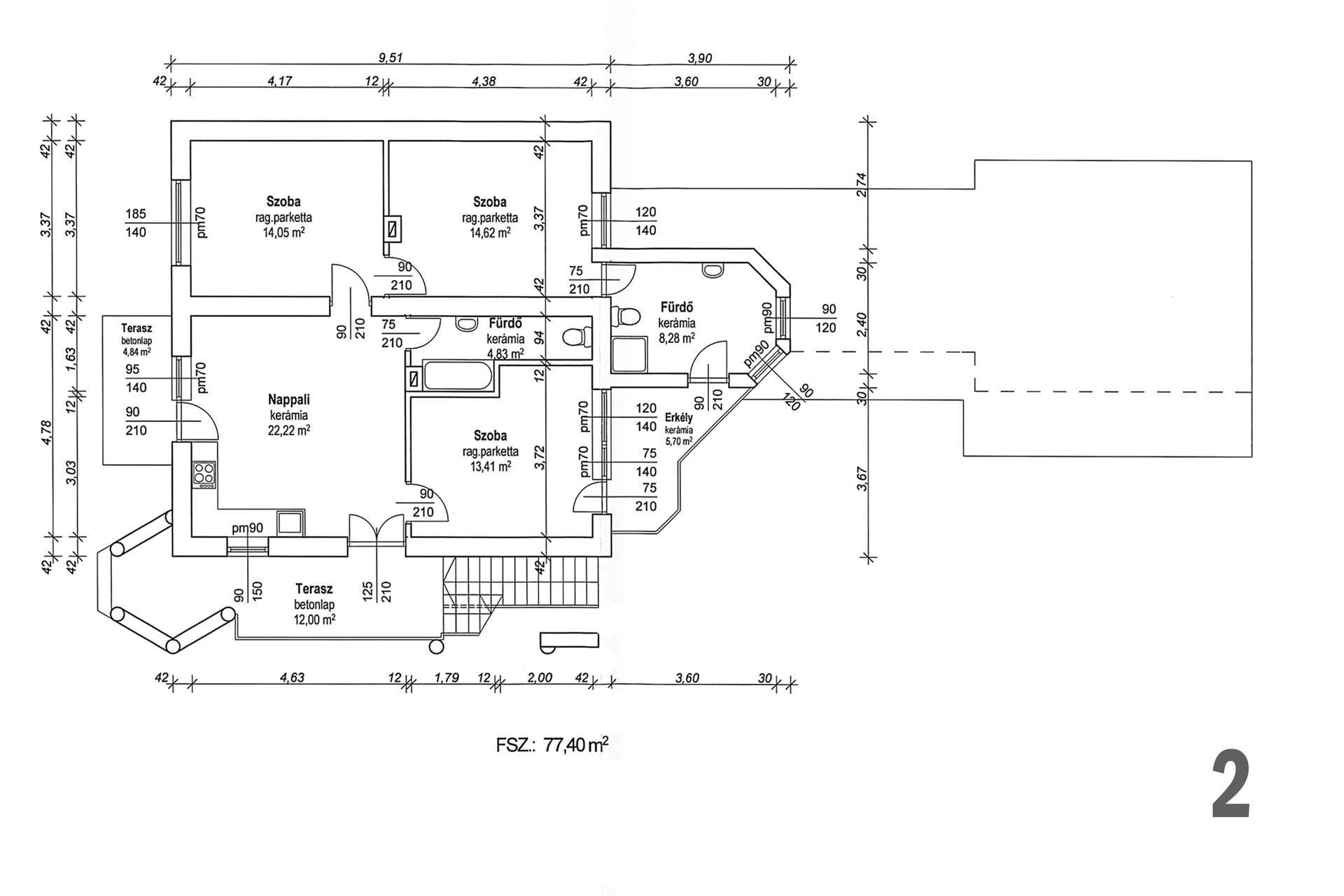
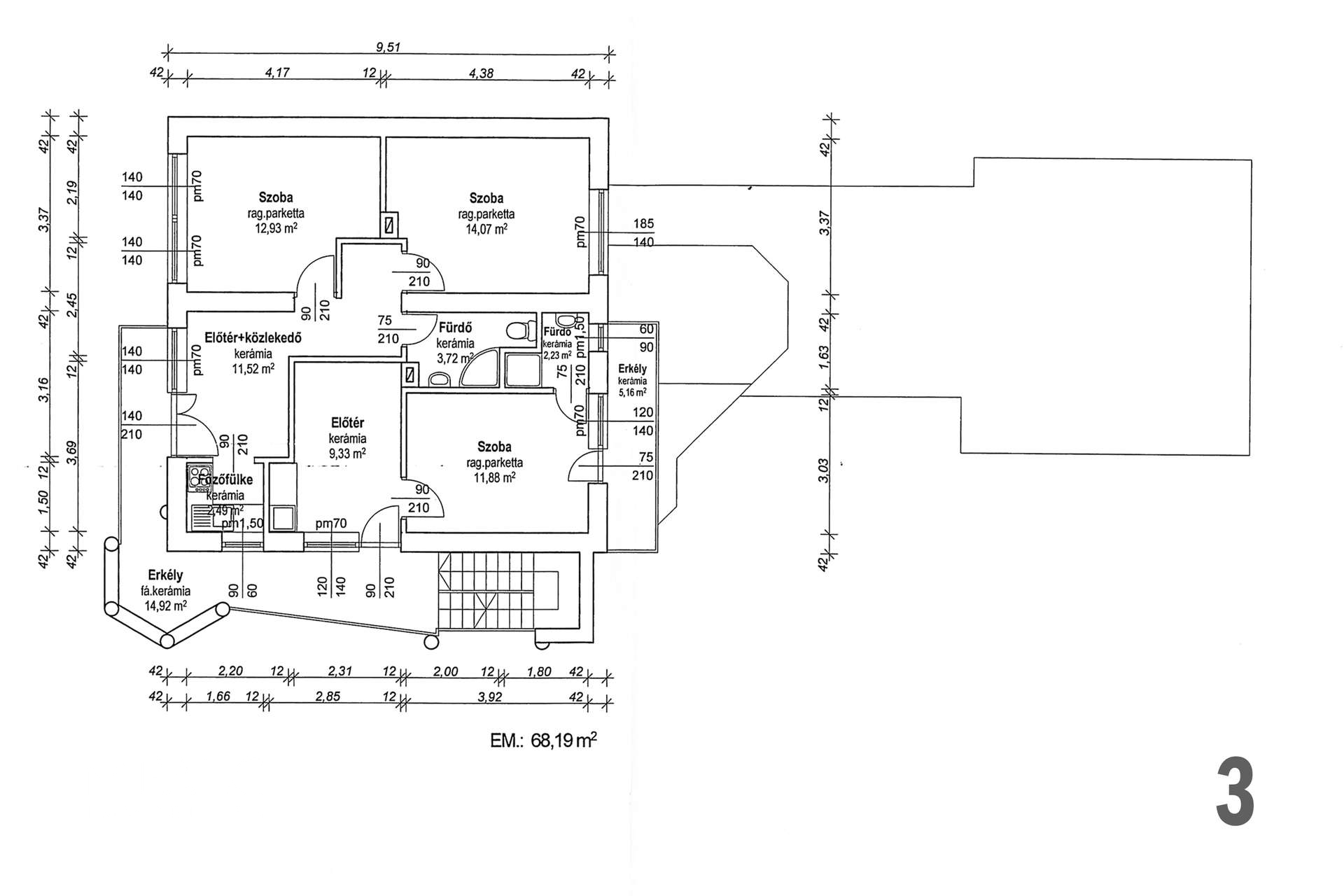
Der Komplex besteht aus einer großzügigen Eigentümerwohnung sowie vier vollständig ausgestatteten Gästeapartments und eine Wohnung die noch ausgebaut werden kann, die ganzjährig an Touristen vermietet werden können. Aufgrund der konstant hohen Nachfrage nach Unterkünften in Hévíz stellt das Objekt eine ideale Kombination aus Wohnimmobilie und renditestarker Investition dar.
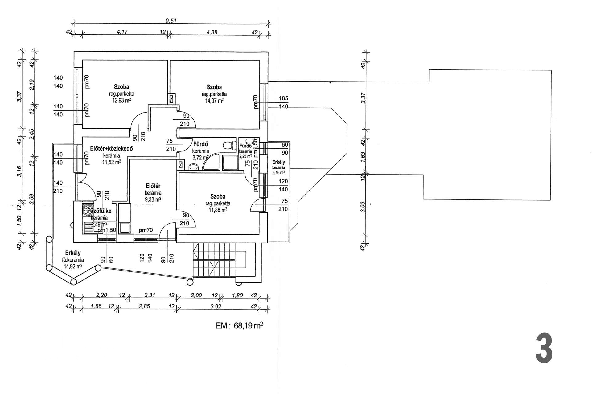
Die Wohnfläche beträgt insgesamt ca. 275 m², die Gesamtfläche inklusive Untergeschoss rund 428 m². Darüber hinaus steht ein ausgebautes Dachgeschoss zur Verfügung, das bereits vollständig für den Ausbau eines weiteren Apartments vorbereitet ist.
Aktuell umfasst das Objekt:
eine Eigentümerwohnung mit vier Zimmern und zwei Badezimmern (ca. 77,4 m²)
drei vollständig ausgestattete Gästeapartments für touristische Vermietung
ein Apartment mit zwei Schlafzimmern für bis zu vier Personen
ein ausbaufähiges Dachgeschoss für ein weiteres Apartment
ein Untergeschoss mit großer Garage sowie mehreren Technik- und Lagerräumen
Alle Apartments verfügen über separate Eingänge. Gemeinschaftsflächen wie Hotelkorridore oder Hallen sind nicht vorhanden, was zu niedrigen Energie- und Betriebskosten führt.
Zusätzlich eine Werkstatt, ein Abstellraum und ein Technikraum, der mit der Anlage für Heizung und Warmwasserversorgung des Hauses ausgestattet ist.
Bei Bedarf kann die Eigentümerwohnung problemlos in zwei zusätzliche luxuriöse Gästeapartments umgebaut werden. Somit lässt sich der Komplex auf bis zu sieben touristische Apartments erweitern.
Der Betrieb erfolgt derzeit als Gästehaus bzw. Mini-Hotel und eignet sich ideal für ein Familienunternehmen mit überschaubarem organisatorischem Aufwand.
Das Gästehaus ist seit 2015 erfolgreich in Betrieb, verfügt über zahlreiche Stammgäste und eine sehr gute Bewertung auf internationalen Buchungsplattformen.
Sonstige_angaben
Sie haben eine Immobilie gefunden und möchten sicher sein, dass Preis und Zustand stimmen?
Gerade im Ausland können überhöhte Preise oder versteckte Mängel auftreten. Unser Bausachverständiger prüft das Objekt vor dem Kauf und hilft, Risiken zu vermeiden.
Denn nach dem Prinzip „gekauft wie gesehen“ sind spätere Mängelrügen kaum durchsetzbar.
Auf Wunsch unsere zusätzlichen Leistungen
bei dem Abschluss eines Suchauftrages:
Suchprofil & passende Objektvorschläge
Gemeinsame Besichtigungen
Zustands- und Risikoabschätzung (Umkreis ca. 50 km Hévíz / Keszthely)
Begleitung bei Kaufabwicklung
(Fragen Sie uns gerne schriftlich an)
In der Provision enthalten
Grundbuchprüfung (Lasten & Eigentum)
Vermittlung deutschsprachiger Rechtsanwalt
(in Ungarn beglaubigt der Anwalt den Kaufvertrag)
Deutsche Kaufvertragsübersetzung
Ummeldung von Strom, Wasser, Gas, Müll etc.
Hausbetreuung auf Wunsch
Hinweis:
Die Objektbeschreibung basiert ganz oder teilweise auf den Angaben des Eigentümers. Für die Richtigkeit und Vollständigkeit dieser Informationen übernehmen wir keine Gewähr. Möchten auch Sie Ihre Immobilie in Deutschland oder Ungarn professionell vermarkten? Dann kontaktieren Sie uns gerne! Wir stehen Ihnen täglich von Montag bis Sonntag zwischen 6:00 und 22:00 Uhr persönlich zur Verfügung. Über 200.000 aktive Interessenten warten bereits auf Ihr Angebot. Bitte beachten Sie, dass das Exposé möglicherweise unter Zuhilfenahme von Künstlicher Intelligenz (KI) erstellt oder überarbeitet wurde. Dabei wurden jedoch keine wesentlichen Merkmale verändert. Kaufberatung & Objektprüfung
Ausstattung
- Ausstattungskategorie
- Standard
- WG-Geeignet
- Bad
- Dusche, Wanne, Fenster
- Küche
- Einbauküche
- Bodenart
- Parkett, Fliesen
- Heizungsart
- Zentral
- Befeuerung
- Gas
- Stellplatzart
- Garage, Außenstellplatz
- Gartennutzung
- Unterkellert
- Keller
- Abstellraum
- Gäste-WC
Energiepass
- Energieträger
- Gas
- Geltende EnEV
- Liegt bei Besichtigung vor
- Gebäudeart
- Wohngebäude
Kontaktperson
- Firma
- FALC Immobilien Ortenau
- Name
- Wolf
- Vorname
- Dorit
- Strasse
- Ullenburg Straße
- Hausnummer
- 2
- PLZ
- 77871
- Ort
- Renchen
- Email Zentrale
- dorit.wolf@falcimmo.de
- Telefon Zentrale
- +49 172 6971333
- Fax
- +49 2242 9010319
- Mobil
- +49 172 6971333
- Webseite / URL
- www.falcimmo.de
Immobiliendetails
- Objektnummer
- FALC-DoWo-82486
- Vermarktung
- Verkauf
- Objektart
- Haus, MEHRFAMILIENHAUS
Kosten
- Kaufpreis
- 550.000,00 €
- Provision
- 2 Prozent zzgl. MwSt. vom Kaufpreis inkl. MwSt.
Flächen
- Wohnfläche
- 275,0 m²
- Grundstücksfläche
- 898,0 m²
- Gesamtfläche
- 428,0 m²
- Anzahl Zimmer
- 9,0
- Anzahl Schlafzimmer
- 7,0
- Anzahl Badezimmer
- 6,0
- Anzahl Stellplätze
- 6,0
- Anzahl Balkone
- 2,0
- Anzahl Terrassen
- 3,0
Zustand
- Baujahr
- 2000
- Zustand
- Neuwertig
- Letzte Modernisierung
- 2015
- Frei ab
- Absprache
.jpeg)











.jpg)
.jpg)
.jpg)



.jpg)
.jpg)

.jpg)
.jpg)









