Wohn- und Geschäftshaus in Bonn-Nähe – Kapitalanlage mit zusätzlichem Vermietungspotenzial
Objektbeschreibung
Objekttitel
Wohn- und Geschäftshaus in Bonn-Nähe – Kapitalanlage mit zusätzlichem Vermietungspotenzial
Lage
Die Immobilie befindet sich in einer gewachsenen Wohnlage im Alfterer Ortsteil Witterschlick, angenehm eingebettet zwischen dörflichem Umfeld und der schnellen Erreichbarkeit der Bonner Stadtteile. Für eine Kapitalanlage ist das ein überzeugender Mix aus alltagstauglicher Infrastruktur, guter Vermietbarkeit und solider Anbindung.
Die Nahversorgung ist bequem abgedeckt: Ein Supermarkt wie Edeka Schwindt liegt in ca. 700 m Entfernung. Für den täglichen Bedarf sind außerdem Bäcker und Caféangebote in der Nähe, zum Beispiel Backhaus Eckey in ca. 400 m sowie Casa del Gelato in ca. 400 m. Auch die medizinische Grundversorgung ist schnell erreichbar, etwa mit der Glocken Apotheke in ca. 400 m.
Die Anbindung an den öffentlichen Verkehr ist ein klarer Standortvorteil. Mehrere Bushaltestellen liegen fußläufig, darunter Witterschlick Friedhof in ca. 300 m und Witterschlick Kirche in ca. 400 m. Der Bahnhof Alfter-Witterschlick ist in ca. 700 m erreichbar und bietet eine komfortable Schienenanbindung in Richtung Bonn und Euskirchen.
Für Autofahrer ist die nächste Autobahnauffahrt in ca. 3 bis 4 km erreichbar, wodurch sich die Wege in die Region und zu den überregionalen Achsen unkompliziert gestalten. Der Flughafen Köln Bonn liegt je nach Route in etwa 30 km Entfernung und ist damit für Geschäftsreisen und Pendler gut nutzbar.
Auch Freizeit und Alltag lassen sich hier gut verbinden: Grünflächen und kleine Parks liegen in der näheren Umgebung, ebenso Sportangebote wie der Turnerbund 1906 Witterschlick e.V. in ca. 400 m. Ergänzend sorgen Restaurants in der Umgebung, zum Beispiel der Lambertushof in ca. 400 m, für kurze Wege am Abend.
In Summe bietet die Lage eine ausgewogene Kombination aus ruhigem Wohnumfeld, verlässlicher Infrastruktur und überzeugender Verkehrsanbindung ein wichtiger Baustein für eine nachhaltige Kapitalanlage.
Ausstatt_beschr
Wohn- und Geschäftshaus mit gemischter Nutzung:
- Zwei Gewerbeeinheiten im Erdgeschoss
- Zwei Wohneinheiten im Ober- und Dachgeschoss
- Große Terrasse im Obergeschoss
- Lagerfläche mit vielseitiger Nutzung
- Vier Stellplätze am Gebäude
- Große Garage vorhanden
- Teilweise modernisierte Fenster mit Isolier- und Schallschutzverglasung
- Erneuerte Schaufenster
- Sicherheitsrolllade im Eingangsbereich zur Hauptstraße
- Erneuerung verschiedener Fensteranlagen
- Holzterrasse im Obergeschoss erneuert
- Modernisierung von Dachbereichen
Objektbeschreibung
Dieses vielseitige Wohn- und Geschäftshaus in zentraler Lage von Alfter-Witterschlick verbindet gewerbliche Nutzung, Wohnraum und attraktive Entwicklungsmöglichkeiten in einer Immobilie.
Die heutige Grundstruktur des Gebäudes entstand durch einen umfangreichen Umbau im Jahr 1938, während eine weitere genehmigte Erweiterung 1958 umgesetzt wurde. Dadurch entwickelte sich ein Gebäude, das heute Wohnen und Gewerbe unter einem Dach vereint und unterschiedliche Nutzungskonzepte ermöglicht.
Im Erdgeschoss befinden sich zwei getrennte Gewerbeeinheiten mit einer Gesamtfläche von rund 125 m², die durch ihre Lage an der Hauptstraße eine gute Sichtbarkeit und Erreichbarkeit bieten. Eine der Gewerbeeinheiten ist aktuell vermietet, während die zweite Einheit derzeit leer steht und dadurch zusätzliche Gestaltungsmöglichkeiten eröffnet.
Der Bereich kann weiterhin als Laden- oder Praxisfläche genutzt werden oder – vorbehaltlich baurechtlicher Prüfung – auch als zusätzliche Wohnfläche umgestaltet werden.
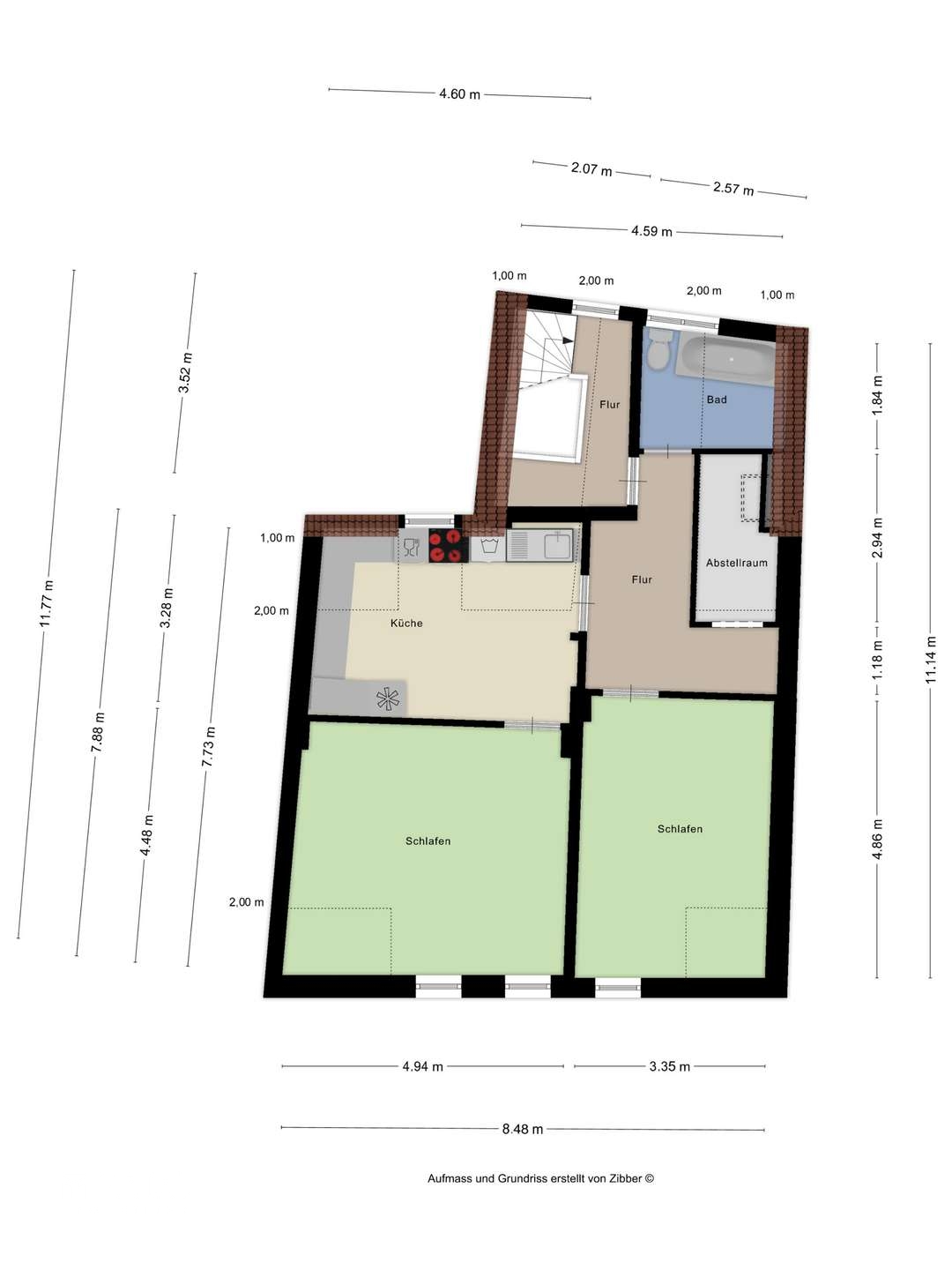
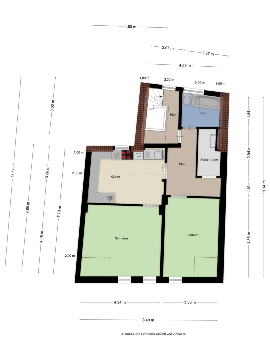
Das Obergeschoss wird aktuell als großzügiger Wohnbereich genutzt und bietet eine Wohnfläche von ca. 101 m². Die Wohnung überzeugt durch eine angenehme Raumaufteilung und eine großzügige Terrasse, die zusätzlichen Freiraum im Außenbereich schafft.
Im Dachgeschoss befindet sich eine weitere Wohneinheit mit rund 69 m² Wohnfläche, die derzeit vermietet ist und damit zur laufenden Einnahmesituation der Immobilie beiträgt.
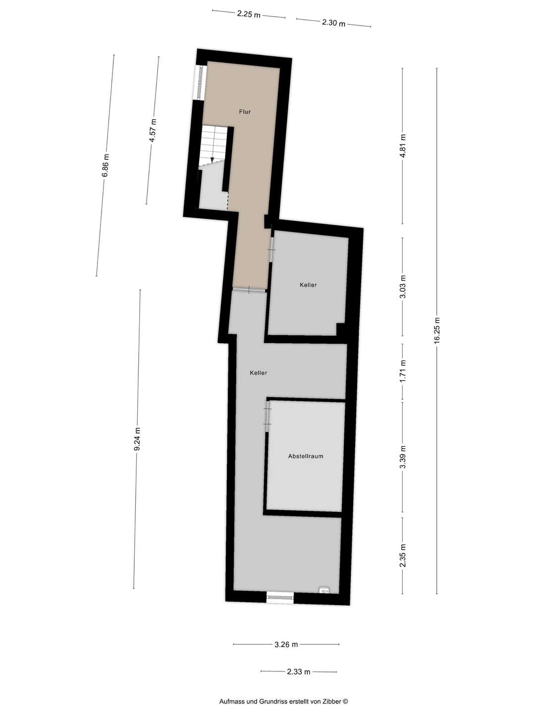
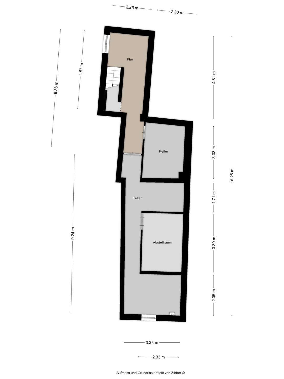
Ergänzt wird das Gebäude durch zusätzliche Nutzflächen, darunter ein separater Lagerraum mit ca. 46 m², der vielseitig genutzt werden kann.
Durch die Kombination aus Wohnungen, Gewerbeeinheiten und Lagerflächen bietet diese Immobilie eine attraktive Grundlage für Kapitalanleger, die eine stabile Einnahmesituation mit zusätzlichem Entwicklungspotenzial verbinden möchten.
Die Immobilie verfügt aktuell über mehrere vermietete Einheiten sowie eine freie Gewerbefläche, wodurch sich bereits bestehende Mieteinnahmen mit zusätzlichem Wertsteigerungspotenzial verbinden lassen.
Derzeit werden bei einigen Einheiten Mieten deutlich unter der ortsüblichen Vergleichsmiete erzielt, da in den vergangenen Jahren keine Anpassungen vorgenommen wurden.
Für einen zukünftigen Eigentümer eröffnet sich dadurch die Möglichkeit, die Mieteinnahmen schrittweise an das aktuelle Marktniveau anzupassen und so die Rendite langfristig zu optimieren.
Zusätzlich bietet die aktuell freie Einheit im Erdgeschoss verschiedene Optionen:
- Neuvermietung als Gewerbefläche
- Umnutzung zu Wohnzwecken (vorbehaltlich Genehmigung)
- Kombination aus Arbeiten und Wohnen
- Durch diese Flexibilität eignet sich das Objekt sowohl für klassische Kapitalanleger als auch für Investoren, die Wertsteigerungspotenziale aktiv entwickeln möchten.
Stabile Mieteinnahmen kombiniert mit zusätzlichem Mietsteigerungs- und Nutzungspotenzial
Aktuelle Mieteinnahmen (Ist-Stand):
Derzeit sind mehrere Einheiten der Immobilie vermietet und generieren folgende monatliche Nettokaltmieten:
1.287 € monatlich
15.444 € jährlich
➡ Bruttorendite IST: ca. 3,59 %
➡ Faktor IST: ca. 27,8
Eine weitere Gewerbeeinheit im Erdgeschoss ist derzeit nicht vermietet und bietet damit zusätzliches Einnahmepotenzial.
Mietpotenzial (Soll-Miete):
Bereits bei konservativer Betrachtung ergibt sich ein deutlich höheres Einnahmepotenzial.
Wird die aktuell freie Einheit im Erdgeschoss – unabhängig davon, ob als Ladenlokal oder Wohnfläche – vermietet und zusätzlich die derzeit vom Eigentümer genutzte Garage in die Vermietung einbezogen, ergibt sich bereits ohne Anpassung der bestehenden Mietverhältnisse an die ortsübliche Vergleichsmiete folgende mögliche Einnahmesituation:
➡ Soll-Miete:
ca. 24.648 € Nettokaltmiete pro Jahr
➡ Bruttorendite SOLL: ca. 5,73 %
➡ Faktor SOLL: ca. 17,4
Damit zeigt sich bereits ohne Mietanpassungen ein attraktives Entwicklungspotenzial der Immobilie.
Ob als Kapitalanlage mit Entwicklungspotenzial, als Standort für das eigene Gewerbe oder in einer individuell kombinierten Nutzung aus Wohnen und Arbeiten – diese Immobilie eröffnet vielfältige Möglichkeiten und bietet eine solide Grundlage für unterschiedliche Nutzungskonzepte.
Sonstige_angaben
Bei Kontaktaufnahme per E-Mail: Geben Sie bitte immer die vollständige Adresse und Rufnummer an - vielen Dank!
Die Objektbeschreibung beruht ganz oder zum Teil auf Angaben des Eigentümers. Für die Richtigkeit oder Vollständigkeit übernehmen wir keine Gewähr.
Sie denken über den Verkauf Ihrer Immobilie nach?
Profitieren Sie von einer professionellen Wertermittlung, einem optimalen Preis und einem persönlichen Rundum-Service- diskret, transparent und zuverlässig.
Finanzierungsberatung gewünscht?
Gerne vermitteln wir Ihnen über unser Partnerunternehmen FALC-Finance die passende Baufinanzierung zu attraktiven Konditionen , individuell auf Ihre Bedürfnisse abgestimmt.
Ausstattung
- Küche
- Einbauküche
- Bodenart
- Laminat, Fliesen, Dielen
- Unterkellert
- Keller
- Gäste-WC
Energiepass
- Geltende EnEV
- Liegt bei Besichtigung vor
- Gebäudeart
- Gewerbe
Kontaktperson
- Firma
- FALC Immobilien
- Name
- Lehnert
- Vorname
- Vivienne
- Strasse
- Aachener Str.
- Hausnummer
- 541
- PLZ
- 50933
- Ort
- Köln
- Email Zentrale
- vivienne.lehnert@falcimmo.de
- Telefon Zentrale
- +49 221 29497744
- Fax
- +49 2242 9010319
- Mobil
- +49 176 70074638
- Webseite / URL
- www.falcimmo.de
Immobiliendetails
- Objektnummer
- FALC-CR-69615
- Vermarktung
- Verkauf
- Objektart
- Zinshaus, Renditeobjekt, WOHN_UND_GESCHAEFTSHAUS
Kosten
- Kaufpreis
- 430.000,00 €
- Jahresnettomiete
- 15.444,00 €
- Faktor
- 27,8
- Provision
- 3,57 % inkl. MwSt. vom not. Kaufpreis inkl. MwSt.
Flächen
- Wohnfläche
- 170,1 m²
- Grundstücksfläche
- 392,0 m²
- Gesamtfläche
- 295,5 m²
- Anzahl Zimmer
- 8,0
- Anzahl Balkone
- 1,0
- Anzahl Gewerbeeinheiten
- 1,0


















.png)
.png)
.png)






