- 76571 Gaggenau
- Kaufpreis300.000,00 €
- Provision3,57 % inkl. 19 % MwSt., siehe "sonstige Angaben" in unserem Exposé inkl. MwSt.
- Wohnfläche189,5 m²
- Grundstück 465,0 m²
- Anzahl Zimmer 7,0
- Objektnummer FALC-Cltu-77314
Objektbeschreibung
Objekttitel
Zweifamilienhaus in ruhiger Lage von Gaggenau-Sulzbach
Lage
Gaggenau ist eine Stadt im Westen Baden-Württembergs rund acht Kilometer nordöstlich von Baden-Baden. Sie ist nach der Kreisstadt Rastatt und vor der Stadt Bühl die zweitgrößte Stadt des Landkreises Rastatt und bildet zusammen mit der südlichen Nachbarstadt Gernsbach ein Mittelzentrum innerhalb der Region Karlsruhe. Eingebettet in die malerische Landschaft des Nordschwarzwalds bietet Gaggenau eine harmonische Mischung aus urbanem Komfort und naturnaher Erholung. Die Gemeinde zeichnet sich durch ihre freundliche Gemeinschaft, gepflegte Infrastruktur und vielfältige Freizeitmöglichkeiten aus.
Die hier angebotene Immobilie befindet sich in einer ruhigen und naturnahen Wohngegend von Gaggenau im Ortsteil Sulzbach. Bushaltestellen, eine Grundschule, ein Kindergarten und ein Schwimmbad befinden sich in unmittelbarer Nähe. Einkaufsmöglichkeiten und Restaurants, alle weiterführenden Schulen, Ärzte und Apotheken sind in wenigen Minuten zu erreichen.
Die Autobahn A5 ist nur wenige Autominuten entfernt und bietet eine gute Anbindung an die Städte Karlsruhe, Freiburg und Basel.
Wohlfühlen ist hier garantiert!
Ausstatt_beschr
Rohdiamant wartet auf Handwerker!
Treten Sie ein und lassen Sie Ihrer Gestaltungsfantasie freien Lauf.
Die Wohneinheiten des Hauses stellen sich wie folgt im Detail dar:
Erdgeschoss (eigenes Grundbuch)
Ca. 69 m², 3 Zimmer, 1 Küche mit Zugang zur Veranda und zum Garten, 1 Tageslichtbad mit Badewanne, WC und Waschbecken, ein Flur mit Zugang zum Keller, Ausstattung "einfach". Geeignet für Singles, Paare und kleine Familien!
Obergeschoss (eigenes Grundbuch)
Ca. 62 m², 2 Zimmer, 1 Küche mit heller Essecke, 1 Tageslichtbad mit Dusche, WC und Waschbecken, 1 Balkon mit Blick zum Garten, 1 Flur mit Zugang zur Scheune, Ausstattung "mittel". Perfekt für Singles oder Paare!
Dachgeschoss mit Dachspitze (eigenes Grundbuch)
Ca. 58 m², 2 Zimmer, 1 Flur / Büro, 1 Tageslichtbad mit Dusche, WC und Waschbecken, Dachspitze mit Flur und kleinem Zimmer, Ausstattung "mittel".
Das Erdgeschoss verfügt als abgeschlossene Wohneinheit über eine eigene Wohnungseingangstür mit separatem Stromzähler. Das Obergeschoss, das Dachgeschoss und die Dachspitze wurden bisher als eine gemeinsame Wohneinheit genutzt, die über einen zweiten Stromzähler verfügt. Von diesen drei Geschossen verfügt nur das Obergeschoss über eine eigene Wohnungseingangstür. Das Dachgeschoss und die Dachspitze sind momentan offen zum Treppenhaus gestaltet.
Im Obergeschosses entspricht die lichte Raumhöhe im Wohnzimmer ca. 2,19 m und im Schlafzimmer ca. 2,23 m (abgehängte Decken), im kleinen Zimmer der Dachspitze 2,04 m. Die Balkonfläche (6,8 m²) wurde zu 50 % bei der Wohnfläche berücksichtigt (3,4 m²).
Hier haben Sie viel Platz, um Ihre Wohnträume zu verwirklichen.
Sie möchten die ersten Gestaltungsideen in Ihrem Kopf durch eine Besichtigung ergänzen? Dann klicken Sie gleich auf "Anbieter kontaktieren" und schicken Sie uns eine unverbindliche Anfrage.
Objektbeschreibung
Eigener Wohn(t)raum und / oder Kapitalanlage - entscheiden Sie selbst!
FALC Immobilien stellt Ihnen dieses Zweifamilienhaus im schönen Gaggenau, Ortsteil Sulzbach vor.
Das Haus wurde 1951 in massiver Bauweise erstellt und 1965 erweitert. Es bietet Ihnen mit einem Grundstück von 465 m² und einer Wohnfläche von ca. 189 m² jede Menge Platz und Gestaltungsmöglichkeiten.
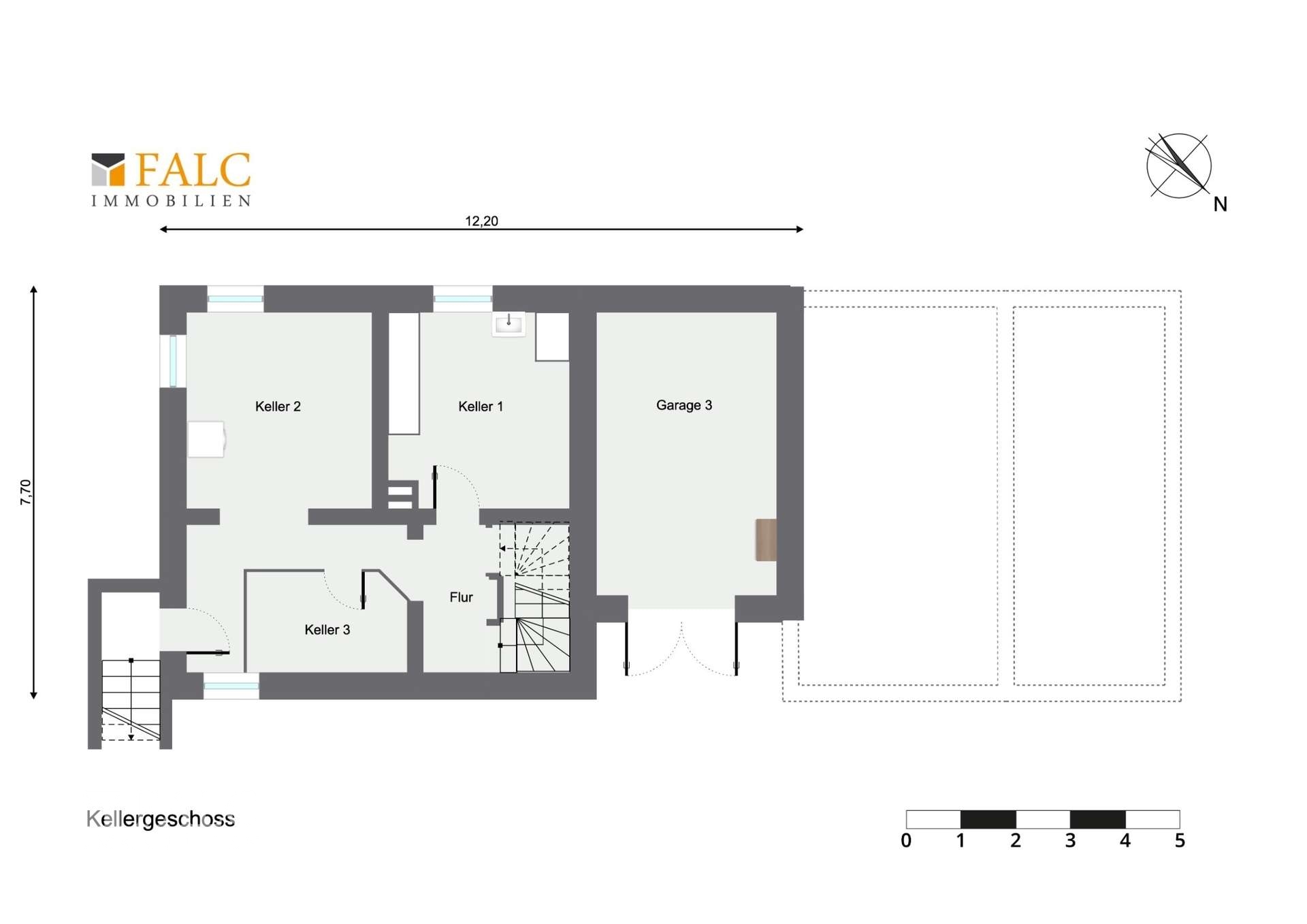
Das Gebäude verfügt in drei aufgeteilten Wohneinheiten (Teilungserklärung und Aufteilungsplan liegen vor) über insgesamt 7 Zimmer, eine ausgebaute Dachspitze, drei Tageslichtbäder, zwei Küchen und einen Balkon. Profitieren Sie zusätzlich von einem Dachspeicher, einer geräumigen Scheune (über den Garagen), vier Kellerräumen, zwei Garagen und ein Schuppen. Bei der hier angebotenen Immobilie ist auch noch ein ruhig gelegener Garten mit Sitzfläche inklusive.
Auf den Böden im Obergeschoss laufen Sie im Wohnbereich auf Bambusparkett, in der Küche auf Buchenparkett (beides von 2005), im Wohnbereich im Dachgeschoss auf Eichenparkett und in der Dachspitze auf Eichen- und Nussbaumparkett.
Der Dachspeicher und die große Scheune bieten Potenzial für den Ausbau zu weiterem Wohnraum.
Bei den Fenstern handelt es sich zum großen Teil um doppelt verglaste Holzrahmen, im Obergeschoss um doppelt verglaste Kunststoffrahmen. Beheizt wird das Objekt mit Gas (dezentrale Öfen im EG), Holz (u.a. Bullerjan im OG) und Strom (Bäder im EG und DG, Durchlauferhitzer für Brauchwasser). 2001 wurde das Dach erneuert und gedämmt sowie die Fassade gestrichen.
Für schnelles Internet sorgen Anbieter wie Unitymedia/Vodafone mit bis zu 1.000 MBit/s im Download und bis zu 50 MBit/s im Upload.
Unser exklusiver 360° Immobilienrundgang verschafft Ihnen einen ersten Eindruck von der Immobilie. Geben Sie einfach folgenden Link in die Adresszeile Ihres Browsers ein und begeben Sie sich auf Entdeckungstour:
https://app.immoviewer.com/portal/tour/3127196
Sonstige_angaben
Die Objektbeschreibung beruht ganz oder zum Teil auf Angaben des Eigentümers. Für die Richtigkeit oder Vollständigkeit übernehmen wir keine Gewähr. Dieses Exposé wurde teilweise mithilfe eines KI-Tools erstellt.
Beim ausgewiesenen Preis handelt es sich um den Angebotspreis, der sich durch Verhandlungen auch verändern kann. Bei diesem Objekt ist nicht vorgesehen, dass der Käufer mit uns eine eigenständige Provisionsvereinbarung trifft, sofern dieser als Verbraucher (§ 14 BGB) zu qualifizieren ist. Der Verkauf erfolgt nur an denjenigen, der sich bereit erklärt, einen Teil der vom Verkäufer zugesagten Provision zu übernehmen. Dieser Anteil beträgt in diesem Fall 3,57 % inkl. MwSt. vom Kaufpreis und ist nach Abschluss des Kaufvertrages zur Zahlung fällig.
Vereinbaren Sie noch heute einen unverbindlichen Besichtigungstermin und überzeugen Sie sich selbst! Terminvorschläge an:
clemens.tuerk@falcimmo.de
Da wir die Termine für Besichtigungen mit größter Sorgfalt planen, bitten wir Sie um Verständnis dafür, dass Termine ausschließlich in schriftlicher Form per E-Mail vereinbart werden können. Um fair und gerecht gegenüber jedem unserer Interessenten zu werden, ist dies unumgänglich. Wir freuen uns über Ihre Kontaktaufnahme!
Geben Sie bitte immer die vollständige ADRESSE und RUFNUMMER an!
Ihr Ansprechpartner: Clemens Türk, clemens.tuerk@falcimmo.de
Besuchen Sie uns auch in unserem Büro in: Pfinztalstraße 59, 76227 Karlsruhe-Durlach.
Sie denken selbst über die Veräußerung Ihrer Immobilie nach oder möchten einfach nur wissen, was diese wert ist? Bei uns erhalten Sie kostenlos eine professionelle Wertermittlung! Gehen Sie hierzu auf:
www.falcimmo.de/wertermittlung-immobilien.html oder kontaktieren Sie uns.
Ausstattung
- WG-Geeignet
- Bad
- Dusche, Wanne, Fenster
- Küche
- Einbauküche
- Bodenart
- Fliesen, Parkett, Dielen
- Kamin
- Befeuerung
- Gas
- Gartennutzung
- Unterkellert
- Keller
Energiepass
- Energieausweistyp
- Bedarfsausweis
- Gültig bis
- 27.01.2034
- Energiebedarf
- 201.7
- Energieträger
- Gas
- Energieeffizienzklasse
- G
- Ausstelldatum
- 28.01.2024
- Geltende EnEV
- 2014
- Gebäudeart
- Wohngebäude
Kontaktperson
- Firma
- FALC Immobilien Karlsruhe-Ost
- Name
- Türk
- Vorname
- Clemens
- Strasse
- Pfinztalstraße
- Hausnummer
- 59
- PLZ
- 76227
- Ort
- Karlsruhe-Durlach
- Email Zentrale
- clemens.tuerk@falcimmo.de
- Telefon Zentrale
- +49 721 27667790
- Fax
- +49 2242 9010319
- Mobil
- +49 176 85920935
- Webseite / URL
- www.falcimmo.de
Immobiliendetails
- Objektnummer
- FALC-Cltu-77314
- Vermarktung
- Verkauf
- Objektart
- Haus, MEHRFAMILIENHAUS
Kosten
- Kaufpreis
- 300.000,00 €
- Provision
- 3,57 % inkl. 19 % MwSt., siehe "sonstige Angaben" in unserem Exposé inkl. MwSt.
Flächen
- Wohnfläche
- 189,5 m²
- Grundstücksfläche
- 465,0 m²
- Anzahl Zimmer
- 7,0
- Anzahl Schlafzimmer
- 5,0
- Anzahl Badezimmer
- 3,0
- Anzahl Balkone
- 1,0
Zustand
- Baujahr
- 1951























