Zweifamilienhaus mit Halle, Werkstatt und Garagen
Objektbeschreibung
Objekttitel
Zweifamilienhaus mit Halle, Werkstatt und Garagen
Lage
Die Immobilie befindet sich in einer ruhigen und naturnahen Umgebung im charmanten Mandelbachtal. Die Region ist geprägt von einer idyllischen Landschaft, die sich hervorragend für Spaziergänge und Outdoor-Aktivitäten eignet. Die Nähe zu mehreren Parks, wie etwa einem in ca. 2,5 km Entfernung, bietet zusätzliche Möglichkeiten zur Erholung im Freien.
Für den täglichen Bedarf ist bestens gesorgt, Supermärkte wie Edeka und Netto sind in wenigen Minuten erreichbar. Auch die medizinische Versorgung ist durch nahegelegene Arztpraxen gesichert.
Die Anbindung an den öffentlichen Nahverkehr ist mit Bushaltestellen in ca. 300 Metern Entfernung gegeben. Für Pendler ist die Autobahnauffahrt in etwa 7 km erreichbar, was eine schnelle Verbindung zu umliegenden Städten ermöglicht.
Für Freizeitaktivitäten stehen zahlreiche Sportstätten und ein Sportcenter in unmittelbarer Nähe zur Verfügung. Kulturinteressierte können die Naturbühne Gräfinthal in ca. 4 km Entfernung besuchen. Zudem gibt es eine Auswahl an Restaurants, die kulinarische Vielfalt bieten, darunter der "Niederländer" und der "Ratskeller".
Insgesamt bietet die Lage eine gelungene Mischung aus ländlicher Ruhe und vernünftiger Infrastruktur, ideal für Familien und Berufstätige, die eine ausgewogene Lebensqualität schätzen.
Ausstatt_beschr
Modernisierungen:
1975 Renovierung EG
1980 Bodenbeläge EG
1998 Renovierung DG
1998 Elektroinstallation
1998 Keller Außenwände
1998 Ölheizung DG
1998 Innenausbau (Büro) Werkstatt
1998 Anlage für Solarthermie
2012 Neuer Warmwasserspeicher (295 L)
Objektbeschreibung
Dieses Zweifamilienhaus aus dem Jahr 1906 steht auf einem 955 m² großen Grundstück und bietet vielfältige Möglichkeiten für Wohnen, Arbeiten und Hobby. Zum Ensemble gehören ein Wohnhaus, eine Werkstatt (ehemals als Schreinerei genutzt), ein Anbau (Bj. 1980) sowie eine Halle (Bj. 1972) mit eigener Zufahrt.
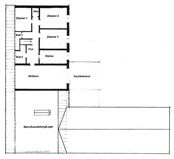
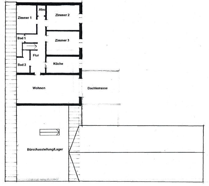
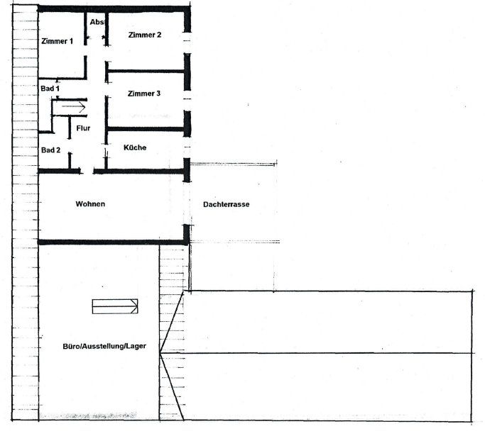
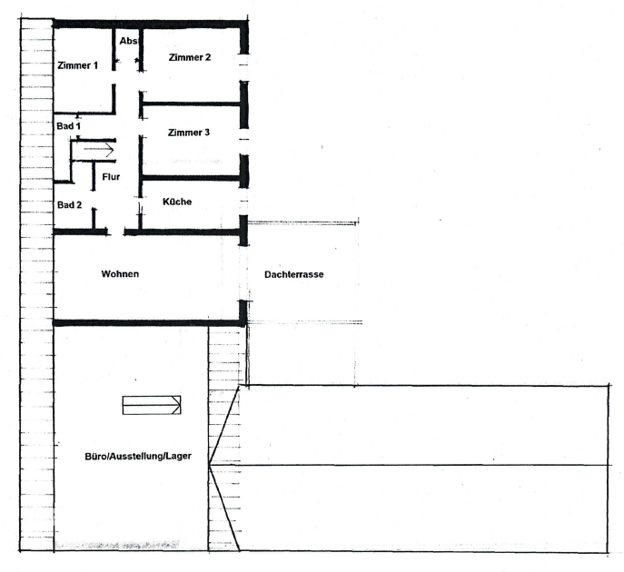
Das Wohnhaus verfügt über rund 185 m² Wohnfläche (zusätzlich ca. 95 m² Nutzfläche), verteilt auf Erdgeschoss (ca. 76 m²) und Dachgeschoss (ca. 109 m²). Die Ausstattung umfasst Holzfenster mit Isolierverglasung sowie Laminat-, PVC- und Parkettböden. Das Erdgeschoss wird über eine Nachtspeicherheizung beheizt, im Dachgeschoss ist eine Ölzentralheizung installiert. Der Zustand des Hauses ist gepflegt, jedoch besteht Modernisierungsbedarf, insbesondere im Erdgeschoss. Hervorzuheben ist die helle, freundlich gestaltete Dachgeschosswohnung mit großer Terrasse und weitem Blick.
Aufteilung: Erdgeschoss mit vier Zimmern, Küche, Bad, Flur und Balkon; Dachgeschoss ebenfalls vier Zimmer, Küche, Bad, Flur sowie einer großen Terrasse.
Zusätzlich umfasst das Anwesen umfangreiche Gewerbe- und Nutzflächen: Die Werkstatt hat ca. 97 m², ist massiv gebaut, verfügt über Holzfenster mit Isolierverglasung und befindet sich in einem ordentlichen Erhaltungszustand. Der Anbau bietet ebenfalls ca. 97 m². Die Halle ist mit ca. 321 m² die größte Nutzfläche.
Insgesamt stehen ca. 515 m² Nutzfläche zur Verfügung, geeignet als Lager, Werkstatt, Hobbyräume, für PKW oder kreative Projekte.
Fazit: Die Immobilie besticht durch solide Bauweise und großzügige Flächen für individuelle Nutzungskonzepte. Eine Modernisierung könnte das Potenzial des Objekts weiter steigern.
Sonstige_angaben
Wir bieten Ihnen eine kostenlose 24/7-Hotline unter der Rufnummer 0800-6460646, über die Sie uns jederzeit erreichen können.
Wenn Sie Interesse an der Immobilie haben, fordern Sie gerne das ausführliche Exposé an, das Ihnen in der Regel kurzfristig und automatisch zugesandt wird. Sollten Sie eine Besichtigung wünschen, antworten Sie am besten direkt per E-Mail auf das Exposé. Wir setzen uns umgehend mit Ihnen in Verbindung und unterbreiten Ihnen passende Terminvorschläge. Bitte geben Sie dabei stets Ihre vollständigen Kontaktdaten an.
Die Objektbeschreibung basiert ganz oder teilweise auf den Angaben des Eigentümers. Für die Richtigkeit und Vollständigkeit dieser Informationen übernehmen wir keine Gewähr.
Möchten auch Sie Ihre Immobilie professionell vermarkten? Dann kontaktieren Sie uns gerne! Wir stehen Ihnen täglich von Montag bis Sonntag zwischen 6:00 und 22:00 Uhr persönlich zur Verfügung. Über 200.000 aktive Interessenten warten bereits auf Ihr Angebot.
Bitte beachten Sie, dass das Exposé möglicherweise unter Zuhilfenahme von Künstlicher Intelligenz (KI) erstellt oder überarbeitet wurde. Dabei wurden jedoch keine wesentlichen Merkmale verändert.
Ausstattung
- Ausstattungskategorie
- Standard
- Bad
- Wanne, Dusche
- Küche
- Einbauküche
- Bodenart
- Fliesen, Dielen, Laminat, Kunststoff
- Heizungsart
- Zentral
- Befeuerung
- Öl
- Gartennutzung
- Unterkellert
- Keller
Energiepass
- Energieträger
- Öl
- Geltende EnEV
- Liegt bei Besichtigung vor
- Gebäudeart
- Wohngebäude
Kontaktperson
- Firma
- FALC Immobilien Saarbrücken-Ost
- Name
- Weisang
- Vorname
- Christoph
- Strasse
- Cecilienstraße
- Hausnummer
- 16
- PLZ
- 66111
- Ort
- Saarbrücken
- Email Zentrale
- christoph.weisang@falcimmo.de
- Telefon Zentrale
- +49 176 49666815
- Fax
- +49 2242 9010319
- Mobil
- +49 176 49666815
- Webseite / URL
- saarbruecken-ost.falcimmo.de
Immobiliendetails
- Objektnummer
- FALC-ChrW-78582
- Vermarktung
- Verkauf
- Objektart
- Haus, ZWEIFAMILIENHAUS
Kosten
- Kaufpreis
- 329.000,00 €
- Provision
- 3,00 inkl. gestzl. MwSt inkl. MwSt.
Flächen
- Wohnfläche
- 205,0 m²
- Grundstücksfläche
- 955,0 m²
- Anzahl Zimmer
- 8,0
- Anzahl Badezimmer
- 3,0
- Anzahl Balkone
- 1,0
- Anzahl Terrassen
- 1,0
Zustand
- Baujahr
- 1906
- Zustand
- Gepflegt
- Letzte Modernisierung
- 1998
- Frei ab
- nach Absprache






























.jpg)



