Sanierungsbedürftiges Haus im schönen Zalatal

Objektbeschreibung

Objekttitel

Sanierungsbedürftiges Haus im schönen Zalatal

Lage

Türje ist ein charmantes Dorf im westungarischen Komitat Zala und liegt malerisch im grünen Zala Valley. Die Region ist bekannt für ihre sanften Hügel, Weinberge, Wälder und kleinen traditionellen Dörfer und zählt zu den besonders idyllischen Landschaften im Westen Ungarns.

Ein besonderes Highlight von Türje ist das historische Türje Premonstratensian Monastery, eine beeindruckende Klosteranlage aus dem Mittelalter. Die romanische Kirche und das Kloster zählen zu den bedeutendsten historischen Bauwerken der Region und verleihen dem Ort eine besondere kulturelle Atmosphäre.

Die Umgebung von Türje lädt zu ausgedehnten Spaziergängen, Wanderungen und Fahrradtouren durch die ruhige Hügellandschaft ein. Gleichzeitig profitieren Besucher von der Nähe zu mehreren bekannten Kurorten und Thermalbädern in der Region. Auch der berühmte Balaton ist nur eine kurze Autofahrt entfernt und bietet zahlreiche Freizeitmöglichkeiten rund um Baden, Segeln und Gastronomie.

Damit verbindet Türje auf besonders angenehme Weise Natur, Geschichte und ländliche Ruhe und ist ein idealer Ort für Erholung und Ausflüge im Westen Ungarns.

Entfernungen:

nach Wien: ca. 180 km (Fahrzeit etwa 2–2,5 Stunden)
nach Budapest: ca. 210 km (Fahrzeit etwa 2 Stunden)
nach Keszthely am Balaton: ca. 35 km (Fahrzeit etwa 30–35 Minuten)

Türje verbindet historische Sehenswürdigkeiten, eine wunderschöne Naturlandschaft und die Nähe zum Balaton – eine ideale Kombination für Besucher, Naturliebhaber und alle, die das authentische Ungarn erleben möchten.

Objektbeschreibung

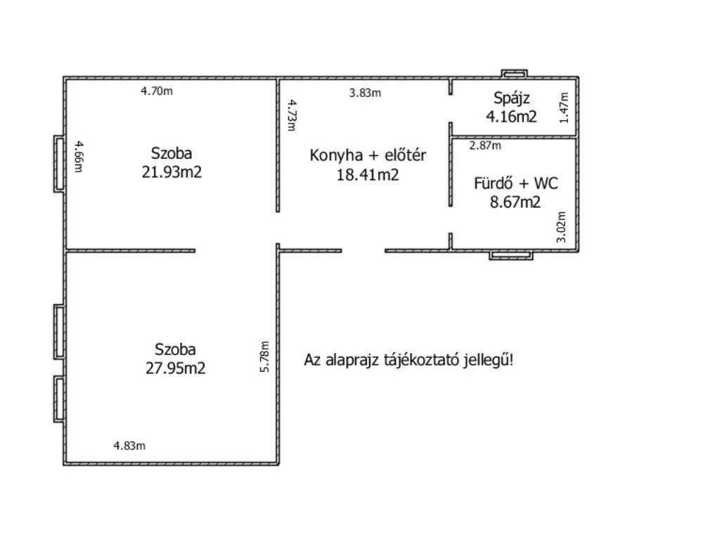
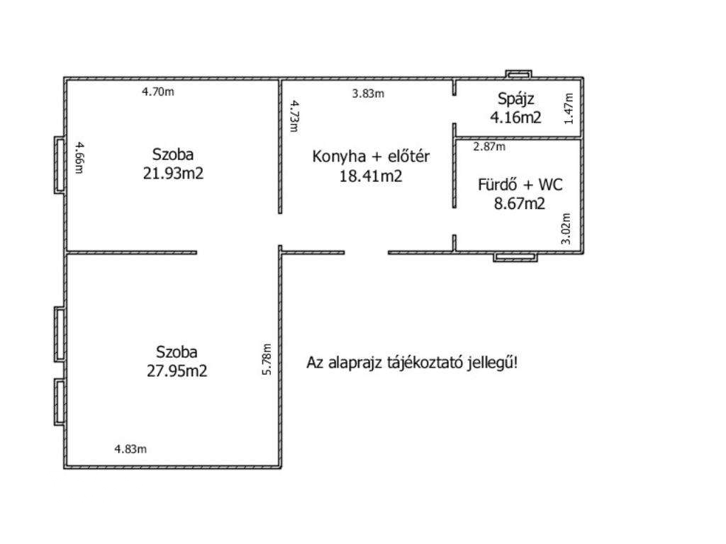
- Wohnfläche: 81 m², Grundstücksfläche: 1060 m²

- Mischbauweise (Lehmziegel + Ziegel), Außenansicht in gutem Zustand, Innenbereich renovierungsbedürftig

- Ziegeldach, Dachkonstruktion in gutem Zustand

- Wasseranschluss vorhanden, Wasserleitungen erneuert

- Neue Stromleitung (32 Ah) an der Außenwand, Innenverkabelung noch aus Aluminium

- Gasanschluss vorhanden

- Abwasseranschluss im Haus

- Zwei ineinander übergehende Räume (können auch als separate Räume genutzt werden), Flur + Küche, Badezimmer mit WC, Speisekammer

- Heizung: Gaskonvektor, Kamin vorhanden, daher auch Heizmöglichkeit über einen Ofen/Kamin

- Badezimmer und Küche noch nicht fertiggestellt

- Blick: Straße

- Brunnen im Hof

- Keine weiteren Nebengebäude auf dem Grundstück, nur ein ca. 6 m² offener Holzschuppen

- Großzügiger Wohnraum, familienfreundlich, ruhige Lage, nahe dem Ortskern (5-10 Gehminuten)

- Das Grundstück ist gepflegt

- Highspeed-Glasfaser-Internet/TV ist in der Siedlung verfügbar


- Die Immobilie kann sofort nach Zahlung des Kaufpreises bezogen werden


Der abgebildete Herd ist nicht im Kaufpreis enthalten!

Sonstige_angaben

Sie haben eine Immobilie gefunden und möchten sicher sein, dass Preis und Zustand stimmen?
Gerade im Ausland können überhöhte Preise oder versteckte Mängel auftreten. Unser Bausachverständiger prüft das Objekt vor dem Kauf und hilft, Risiken zu vermeiden.
Denn nach dem Prinzip „gekauft wie gesehen“ sind spätere Mängelrügen kaum durchsetzbar.

Auf Wunsch unsere zusätzlichen Leistungen bei dem Abschluss eines Suchauftrages:

- Suchprofil & passende Objektvorschläge
- Gemeinsame Besichtigungen
- Zustands- und Risikoabschätzung
- Begleitung bei Kaufabwicklung

In der Provision enthalten:
- Grundbuchprüfung (Lasten & Eigentum)
- Vermittlung deutschsprachiger Rechtsanwalt / Notar
- Deutsche Kaufvertragsübersetzung
- Ummeldung von Strom, Wasser, Gas, Müll etc.
- Hausbetreuung auf Wunsch im ersten Jahr

Hinweis:
Die Objektbeschreibung basiert ganz oder teilweise auf den Angaben des Eigentümers. Für die Richtigkeit und Vollständigkeit dieser Informationen übernehmen wir keine Gewähr.

Möchten auch Sie Ihre Immobilie in Deutschland oder Ungarn professionell vermarkten?

Dann kontaktieren Sie uns gerne!
Über 200.000 aktive Interessenten warten bereits auf Ihr Angebot.
Bitte beachten Sie, dass das Exposé möglicherweise unter Zuhilfenahme von Künstlicher Intelligenz (KI) erstellt oder überarbeitet wurde. Dabei wurden jedoch keine wesentlichen Merkmale verändert.

Ausstattung

  • Abstellraum

Energiepass

  • Geltende EnEV
  • Nicht nötigt
  • Gebäudeart
  • Wohngebäude

Kontaktperson

Firma
FALC Real Estate Ungarn West
Name
Meyer
Vorname
Christian
Strasse
Jókai utca
Hausnummer
16
PLZ
H-8380
Ort
Hévíz
christian.meyer@falcrealestate.com
Telefon Zentrale
+49 171 6234010
Fax
+49 2242 9010319
Mobil
+49 171 6234010
Webseite / URL
www.falcrealestate.com
FALC Real Estate Ungarn West

Immobiliendetails

  • Objektnummer
  • FALC-ChMe-82703
  • Vermarktung
  • Verkauf
  • Objektart
  • Haus, BAUERNHAUS

Kosten

  • Kaufpreis
  • 34.400,00 €
  • Provision
  • 2,42 % des Kaufpreises inkl. MwSt inkl. MwSt.

Flächen

  • Wohnfläche
  • 81,0 m²
  • Grundstücksfläche
  • 1.060,0 m²
  • Anzahl Zimmer
  • 2,0
  • Anzahl Schlafzimmer
  • 1,0
  • Anzahl Badezimmer
  • 1,0

Zustand

  • Zustand
  • Sanierungsbedürftig

Karte