(AABB) Eigentumswohnung im 1.Distrikt von Budapest gegenüber dem Parlament
Objektbeschreibung
Objekttitel
(AABB) Eigentumswohnung im 1.Distrikt von Budapest gegenüber dem Parlament
Lage
Im Herzen von Budapest an der Donau
Ausstatt_beschr
Alle Anschlüsse vorhanden
Objektbeschreibung
Erstklassige Gelegenheit zum Erwerb einer großen Eigentumswohnung unmittelbar an der Donau im ersten Bezirk und genau gegenüber dem Parlament.
Die Wohnung befindet sich im 2. Stock eines altehrwürdigen Gebäudes mitten im Zentrum von Budapest und das Haus verfügt über einen Personenaufzug.
Die Lage ist wirklich atemberaubend, Wohnungen an der direkten Frontseite des gleichen Hauses werden doppelt so teuer gehandelt, aber wir empfehlen diese Wohnung an der ruhigen Südseite des Hauses!
Von einem Erker / kleinen Balkon sieht man die Donau, aber diese Seite des Hauses ist wesentlich ruhiger als die Ostseite, direkt an der Donau.
In der Wohnung selbst hört man überhaupt nichts vom pulsierenden Leben um einen herum und das Haus strahlt die Energie der ehrwürdigen Zeit der Jahrhundertwende aus.
Die große Wohnung bietet sich sowohl für eine private Nutzung, als auch für ein Büro oder eine Praxis an.
Innerhalb der Wohnung wurden in den letzten Jahren diverse Modernisierungen vorgenommen:
- Neue Stromverteilung
- Neue Heizungs-Radiatoren
- Neue Fenster (noch 4 Jahre Garantie)
- Neues Badezimmer
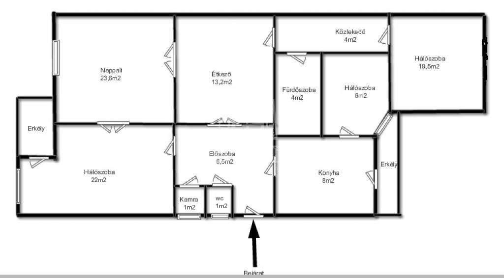
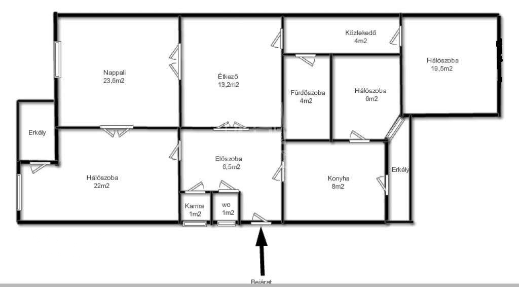
Die Raumaufteilung im Einzelnen:
- 3 Schlafzimmer
- 1 Küche
- 2 Balkone / Erker
- 1 Eingangshalle
- 2 Wohnzimmer
- 1 Badezimmer
- 1 WC extra
- 1 Speisekammer
- 1 Flur
- 1 Kellerraum
Die Wohnung kann teil-möbliert mit einigen wertvollen Antiquitäten oder komplett unmöbliert übergeben werden und steht nach Vertragsabschluss innerhalb von 3 Monaten zur Verfügung.
Ausstattung
- Küche
- Einbauküche
- Befeuerung
- Gas
- Fahrstuhl
- Personen
- Unterkellert
- Keller
- Gäste-WC
Energiepass
- Energieausweistyp
- Bedarfsausweis
- Energieträger
- Gas
- Energieeffizienzklasse
- G
- Geltende EnEV
- Nicht nötigt
- Gebäudeart
- Wohngebäude
Kontaktperson
- Firma
- FALC Real Estate Ungarn West
- Name
- Meyer
- Vorname
- Christian
- Strasse
- Jókai utca
- Hausnummer
- 16
- PLZ
- H-8380
- Ort
- Hévíz
- Email Zentrale
- christian.meyer@falcrealestate.com
- Telefon Zentrale
- +49 171 6234010
- Fax
- +49 2242 9010319
- Mobil
- +49 171 6234010
- Webseite / URL
- www.falcrealestate.com
Immobiliendetails
- Objektnummer
- FALC-ChMe-70458
- Vermarktung
- Verkauf
- Objektart
- Wohnung, ETAGE
Kosten
- Kaufpreis
- 435.000,00 €
- Provision
- 1,21 % inkl. MwSt vom not. Kaufpreis inkl. MwSt.
Flächen
- Wohnfläche
- 126,0 m²
- Anzahl Zimmer
- 5,0
- Anzahl Schlafzimmer
- 3,0
- Anzahl Badezimmer
- 1,0
- Anzahl Balkone
- 2,0
Zustand
- Baujahr
- 1934
- Zustand
- Gepflegt


















