Charmante 3-Zimmer-Wohnung mit einzigartigem Fensterband

Objektbeschreibung

Objekttitel

Charmante 3-Zimmer-Wohnung mit einzigartigem Fensterband

Lage

Die Wohnung befindet sich in einer ruhigen, gut angebundenen Wohnlage von Stolberg, die sowohl Pendlern als auch Familien ideale Voraussetzungen bietet. Zahlreiche Einkaufsmöglichkeiten sind bequem zu Fuß erreichbar und decken den täglichen Bedarf in unmittelbarer Nähe ab. Ebenso befinden sich zahlreiche Arztpraxen sowie das Bethlehem Gesundheitszentrum in kurzer Distanz, was eine optimale medizinische Versorgung gewährleistet.

Mehrere Bushaltestellen befinden sich nur wenige Gehminuten entfernt und bieten eine schnelle Anbindung an den öffentlichen Nahverkehr. Der Stolberger Hauptbahnhof sowie der Mühlener Bahnhof sind ebenfalls gut erreichbar und ermöglichen eine komfortable Weiterreise mit der Bahn. Für Autofahrer sind die umliegenden Autobahnauffahrten schnell erreichbar und bieten eine zügige Verbindung in die umliegenden Städte; der Flughafen Köln/Bonn ist rund 75 km entfernt.

Auch in der Freizeit bleiben keine Wünsche offen: Parks und Grünflächen laden zu Spaziergängen und Erholung im Grünen ein, während Sportbegeisterte mit nahegelegenen Fitnessstudios, Sportstätten und der Sportanlage Birkengang vielfältige Möglichkeiten vorfinden. Kulturelle und gastronomische Angebote – darunter das Kulturzentrum Frankental, das Burghof Theater sowie verschiedene Restaurants – sorgen für Abwechslung im Alltag.

Die Kombination aus ruhiger Wohnlage, guter Infrastruktur und vielfältigen Freizeit- und Erholungsmöglichkeiten macht diesen Standort besonders attraktiv für unterschiedliche Lebensstile und Bedürfnisse.

Ausstatt_beschr

- Renovierte 3-Zimmer-Wohnung, ca. 95 m²

- Obergeschoss, ohne Fahrstuhl

- Einladender Flur

- Gefliestes Tageslichtbad mit Badewanne und neuem Spiegelschrank

- Küche mit ausreichend Platz für Arbeits- und Stellflächen

- Großer, eigener Kellerraum

- Gemeinschaftliche Waschküche und Trockenraum mit eigenen Verbrauchszählern für Waschmaschine und Trockner

- Einbauschrank im Wohnzimmer

- Gasetagenheizung

- Kabelempfang, Glasfaseranschluss verfügbar

- Freisprechanlage

Objektbeschreibung

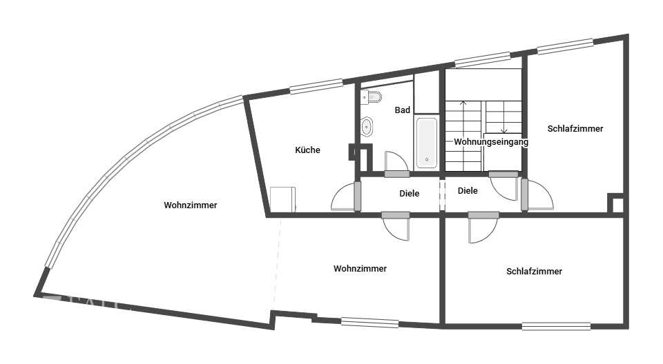
Diese großzügige 3-Zimmer-Wohnung in der Birkengangstraße 1 vereint stilvolles Wohnen, eine durchdachte Raumaufteilung und viel Tageslicht. Sie befindet sich im 2. Obergeschoss eines Mehrfamilienhauses und bietet auf rund 95m² Wohnfläche ein komfortables Zuhause für Familien oder Paare mit Platzbedarf.

Beim Eintritt in die Wohnung öffnet sich ein geradliniger Flur, der den Blick gezielt in die Wohnräume führt.

Im Wohnzimmer zeigt sich dann der besondere Charakter dieser Wohnung: Das geschwungene Fensterband sorgt für ein lebendiges Lichtspiel und verleiht dem Raum einen rustikalen, warmen Ausdruck. Der fest eingearbeitete Einbauschrank fügt sich harmonisch ein, schafft Atmosphäre und gibt dem Raum einen charmanten, unverwechselbaren Mittelpunkt.

Die angrenzende Küche liegt leer und eröffnet die Freiheit für eigene Ideen.

Das größere Schlafzimmer bietet durch seine ruhige Lage eine angenehme Rückzugszone, während das zweite Zimmer flexibel nutzbar bleibt – für Menschen, die Raum für Alltag, Kreativität oder Gäste benötigen.

Das Tageslichtbad mit Badewanne ergänzt die Wohnung mit hellen, klaren Strukturen und praktischer Funktionalität.

Ein Kellerraum rundet das Angebot ab.

Diese Wohnung verbindet besondere architektonische Details mit viel Gestaltungsspielraum und einer Atmosphäre, die sich mit jedem persönlichen Element weiter entfaltet – ideal für alle, die ein Zuhause suchen, das Charakter hat.

Sonstige_angaben

Wir freuen uns einen persönlichen Besichtigungstermin mit Ihnen zu vereinbaren.

Bei weiterem Interesse stellen Sie bitte Ihre Objektanfrage unter Angabe Ihrer vollständigen Kontaktdaten.
Sie erhalten automatisiert und umgehend das vollständige Exposé.
Ihre Wünsche zur Besichtigung senden Sie uns bitte als Antwort auf diese Mail.

Die Objektbeschreibung beruht ganz oder zum Teil auf Angaben des Eigentümers. Für die Richtigkeit oder Vollständigkeit übernehmen wir keine Gewähr.

Sie überlegen Ihre Immobilie zu verkaufen? Als regionaler und erfahrener Immobilienexperte bieten wir Ihnen unseren kompletten Service und unterstützen Sie gerne beim Immobilienverkauf.

Gerne beraten wir Sie auch persönlich in unserem Büro in:
52062 Aachen
Theaterstraße 46
kostenlose Hotline: 0800 646 0 646

Ausstattung

  • Ausstattungskategorie
  • Standard
  • Bad
  • Wanne, Fenster
  • Bodenart
  • Fliesen, Laminat
  • Befeuerung
  • Gas
  • Unterkellert
  • Keller

Energiepass

  • Energieträger
  • Gas
  • Geltende EnEV
  • Liegt bei Besichtigung vor
  • Gebäudeart
  • Wohngebäude

Kontaktperson

Firma
FALC Immobilien Aachen
Name
Strauff
Vorname
Carlos
Strasse
Theaterstraße
Hausnummer
46
PLZ
52062
Ort
Aachen
carlos.strauff@falcimmo.de
Telefon Zentrale
+49 241 91991000
Fax
+49 2242 9010319
Mobil
+49 157 37170070
Webseite / URL
aachen.falcimmo.de
FALC Immobilien Aachen

Immobiliendetails

  • Objektnummer
  • FALC-CaSt-82636
  • Vermarktung
  • Miete/Pacht
  • Objektart
  • Wohnung, ETAGE

Kosten

  • Kaltmiete
  • 710,00 €
  • Warmmiete
  • 860,00 €
  • Mietpreis pro m²
  • 7,47 €

Flächen

  • Wohnfläche
  • 95,0 m²
  • Anzahl Zimmer
  • 3,0
  • Anzahl Schlafzimmer
  • 2,0
  • Anzahl Badezimmer
  • 1,0

Zustand

  • Zustand
  • Gepflegt
  • Frei ab
  • ab sofort

Dokumente

Dokumente

Karte