Wohn- und Geschäftshaus mit interessanter Gewerbefläche
Objektbeschreibung
Objekttitel
Wohn- und Geschäftshaus mit interessanter Gewerbefläche
Lage
Diese Wohn- und Gewerbeimmobilie befindet sich in einem dynamischen und gut erschlossenen Umfeld in der Stadt Eschweiler. Die strategisch günstige Lage macht sie besonders interessant für Kapitalanleger, die von einer nachhaltigen Wertentwicklung profitieren möchten.
Die Anbindung an den öffentlichen Nahverkehr ist hervorragend, da die nächste Bushaltestelle nur ca. 60 m entfernt liegt. Für eine weiter entfernte Anreise verbindet der ungefähr 4 km von der Immobilie gelegene Eschweiler Hauptbahnhof die Stadt effizient mit anderen Regionen. Ihre gute Erreichbarkeit wird durch die Nähe zur Autobahn A4 optimiert, die etwa 3 km entfernt ist und schnellen Zugang zu den Metropolen Aachen und Köln bietet. Der nächste internationale Flughafen Köln/Bonn ist in ca. 80 km Entfernung ebenfalls gut erreichbar, was die Lage der Immobilie zusätzlich attraktiv macht.
Die Fußgängerzone bietet die direkte Anbindung an das pulsierende Leben der Stadt. Alle Angebote, die das tägliche Leben erleichtern und ein gutes Umfeld für Geschäftsbetriebe garantieren befinden sich in der direkten Umgebung. Besonders hervorzuheben sind das Stadt-Apotheke, nur ca. 50 m entfernt, ein wichtiger Punkt für die Gesundheitsversorgung und Lieferdienste. Ein weiterer zentraler Punkt ist der Netto Marken-Discount in ca. 150 m Entfernung, der eine bequeme Versorgung mit Lebensmitteln und Haushaltswaren sicherstellt. Nur wenige Schritte weiter, etwa 210 m entfernt, befindet sich das Sankt Antonius Hospital, welches nicht nur für die medizinische Versorgung von Bedeutung ist, sondern auch ein hohes Verkehrsaufkommen erzeugt und damit Potenzial für Geschäftstätigkeiten eröffnet.
Die lokale Umgebung zeichnet sich durch eine hohe Individualmobilität und eine Vielzahl an verfügbaren Parkmöglichkeiten aus, was die Erreichbarkeit und die Attraktivität der Immobilie zusätzlich fördert. Die Englerthstraße, ein pulsierendes Herzstück von Eschweiler, kombiniert traditionelle Elemente mit modernen Annehmlichkeiten, was sie zu einem idealen Ort für erfolgreiche Investitionsmöglichkeiten im Bereich Gewerbeimmobilien macht.
Ausstatt_beschr
Das Gebäude war vom Hochwasser 2021 betroffen und wurde 2022 umfassend saniert:
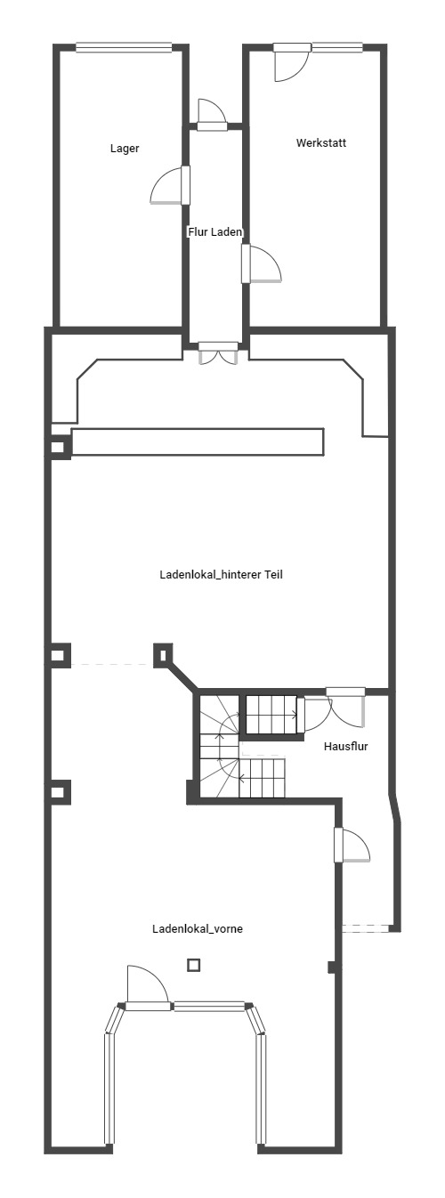
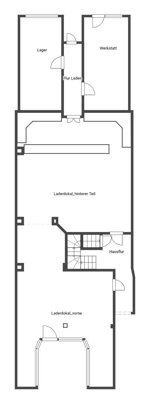
Neue Heizungsanlage, neue Bodenfliesen in den Gewerberäumen, Erneuerung Innenputz usw. Die Gewerbefläche verfügt über eine breite Schaufensterfront mit Passage, die durch ein massives Rolltor geschützt und durch eine Alarmanlage gesichert ist.
Das Gebäude ist zeitgemäss gestaltet.
Alle Fenster der Wohnung bestehen Kunststoffrahmen und sind mit einer doppelten Isolierverglasung versehen.
Ihr Wärmebedarf wird durch zwei eigene Brennwert Gasthermen gewährleistet. Gewerbeeinheit und Wohnung verfügen über eigene Gas- und Stromzähler.
Die Gewerbeeinheit, gesichert durch ein Rolltor und eine eigene Alarmanlage, verfügt über eine eigene Fussbodenheizung, die Böden sind vollständig gefliest. Der angrenzende Garten wird von der Gewerbeeinheit genutzt.
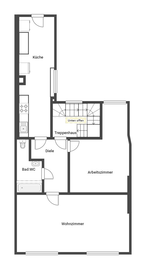
Das Wohn- und Esszimmer im 1. OG ist mit Parkettboden ausgelegt. Die Böden der übrigen Räume sind mit einem hellen Laminat in Holzoptik belegt. Das Badezimmer verfügt über eine Badewanne. Durch die Küche gelangt mans auf die grosszügige Terrasse ist nach Süden ausgerichtet und mit hellen Terrassenplatten ausgelegt.
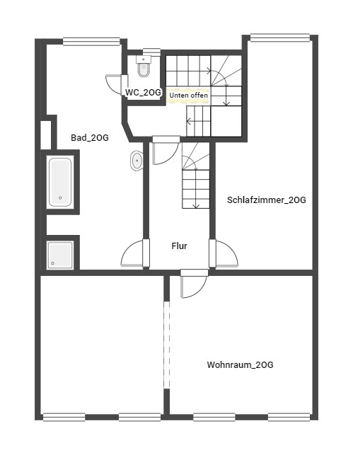
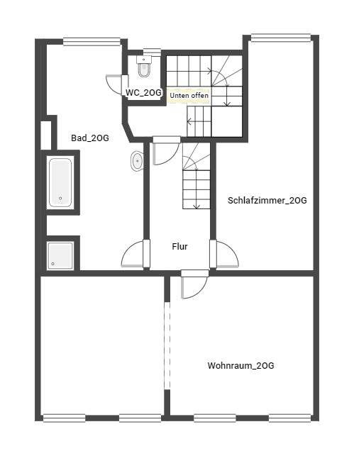
Über das Treppenhaus gelangt man ins 2. OG, das über einen großen Wohnraum und ein separates Schlafzimmer verfügt. Angrenzend ein geräumiges Badezimmer mit Dusche und Badewanne nebst separatem WC.
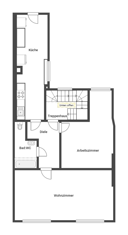
Über eine innenliegende, moderne Holztreppe gelangt man in das ausgebaute Dachgeschoss mit zwei Zimmern und einem Koch- und Essbereich.
Objektbeschreibung
Ihr neues Wohn- und Geschäftshaus central in der Fussgängerzone von Eschweiler gelegen, bietet erstklassige Voraussetzungen für Ihr Gewerbe im eigenen Haus.
Die Gewerbefläche (großer Verkaufsraum, zwei Nebenräume und WC) von ca. 130 m2 und angrenzendem kleinen Gartenbereich bietet Ihnen Raum für Ihre Ideen.
Die Wohnfläche von ca. 250 m2 erstreckt sich über zwei Stockwerke und das ausgebaute Dachgeschoss, diese ist über einen separaten Hauseingang erreichbar. Das Gebäude ist ca. zur Hälfte unterkellert und verfügt über eine grosse Sonnenterrasse.
Das Wohn- und Geschäftshaus aus dem Jahr 1925 wurde 1981 umfassend umgebaut und das Dachgeschoss ausgebaut.
Nach der Flut 2021 erfolgte eine umfassende Renovierung von Erd- und Kellergeschoss, im Erdgeschoss wurde eine neue Fussbodenheizung verlegt, vollständig neu gefliest und verputzt. Zwei neue Zentralheizungen wurden im Keller installiert. Stromanschlüsse wurden teilweise erneuert.
Die großzügige Wohnung ist gut vermietet und bietet eine solide Basis.
Sonstige_angaben
Weitere Details und Informationen zur Immobilie erhalten Sie gerne auf Anfrage, bitte haben Sie Verständnis dafür, dass wir aus Rücksicht auf die Privatsphäre der Mieter nur wenige Innenaufnahmen veröffentlichen können.
Bei Interesse geben Sie bitte immer Ihre vollständigen Kontaktdaten an.
Besichtigungen sind nach Vorlage eines Kapitalnachweises möglich.
Die Objektbeschreibung beruht ganz oder zum Teil auf Angaben des Eigentümers. Für die Richtigkeit oder Vollständigkeit übernehmen wir keine Gewähr.
Als regionale und erfahrene Immobilienexperten bieten wir Ihnen unseren kompletten Service an und unterstützen auch Sie, kompetent und mit Leidenschaft beim Verkauf Ihrer Immobilie.
Gerne beraten wir Sie
Ihre Ansprechpartner:
Bernd Benien
FALC Immobilien Eschweiler
Englerthstrasse 21
52249 Eschweiler
Tel: 0800/6460646 (kostenlos)
bernd.benien@falcimmo.de
Melden Sie sich einfach, wir freuen uns auf Sie!
Ausstattung
- Ausstattungskategorie
- Standard
- Bad
- Wanne, Dusche
- Bodenart
- Laminat, Parkett, Kunststoff, Fliesen
- Befeuerung
- Gas
- DV Verkabelung
- Unterkellert
- Keller
Energiepass
- Energieausweistyp
- Bedarfsausweis
- Gültig bis
- 11.02.2035
- Energiebedarf
- 145.04
- Energieträger
- Gas
- Energieeffizienzklasse
- E
- Ausstelldatum
- 11.02.2025
- Geltende EnEV
- 2014
- Gebäudeart
- Wohngebäude
Kontaktperson
- Firma
- FALC Immobilien Eschweiler
- Name
- Benien
- Vorname
- Bernd
- Strasse
- Englerthstraße
- Hausnummer
- 21
- PLZ
- 52249
- Ort
- Eschweiler
- Email Zentrale
- bernd.benien@falcimmo.de
- Telefon Zentrale
- +49 800 6460646
- Fax
- +49 2242 9010319
- Mobil
- +49 173 2011184
- Webseite / URL
- aachen.falcimmo.de
Immobiliendetails
- Objektnummer
- FALC-BeBe-66367
- Vermarktung
- Verkauf
- Objektart
- Haus, STADTHAUS
Kosten
- Kaufpreis
- 449.000,00 €
- Jahresnettomiete
- 25.980,00 €
- Faktor
- 18,1
- Provision
- keine inkl. MwSt.
Flächen
- Wohnfläche
- 250,0 m²
- Grundstücksfläche
- 292,0 m²
- Anzahl Zimmer
- 8,0
- Anzahl Badezimmer
- 2,0
- Anzahl Balkone
- 1,0
- Anzahl Terrassen
- 1,0
- Anzahl Gewerbeeinheiten
- 1,0
Zustand
- Baujahr
- 1921
- Zustand
- Gepflegt
- Letzte Modernisierung
- 2022
















